Электромонтажные работы в квартире: поэтапная схема выполнения

Электропроводка в типовых квартирах прокладывается пока на стадии возведения дома согласно проектной документации. До самого покупки жилья выбрать место расположения розеток и выключателей неисполнимо. После того как квартира перешла в состояние, жильцы вправе поменять проводку или трансформировать существующую по своему усмотрению, но с соблюдением норм и правил. В данной статье пойдет панегирик о том, что включают в себя электромонтажные работы в квартире, и о тонкостях их проведения.
Аюшки? включают в себя электромонтажные работы в квартире
На сегодняшний день любой капитальный ремонт предполагает монтаж электропроводки и оборудования. Же, даже задумав простой косметический ремонт, коль (скоро) дом старый, в нем придется поменять и проводку.

В старых постройках используются линия с сердечником из алюминия и не рассчитанные возьми высокие нагрузки. Кроме того, такая сопровождение не должна эксплуатироваться более 20 полет.

Решив провести электромонтажные работы в квартире беспричинно, важно получить консультацию у квалифицированного специалиста. Сие поможет выполнить электрификацию жилых помещений отлично. Ведь при недостаточной компетенции проведение работ с электричеством может дать начало к неприятностям. Подключение таких крупных бытовых приборов, словно стиральная или посудомоечная машина, также даст десять очков вперед доверить профессионалу, который сделает заземление и установит в щитке автоматы.

Электромонтажные работы в квартире проходят в мало-мальски этапов:
- Проектирование новой проводки.
- Демонтаж старых, установка или перенос новых источников освещения.
- Выискивание и устранение проблем с электрическим сигналом на различных участках кандалы.
- Монтаж счетчиков, автоматов и УЗО.
- Сборка и подгонка одного или нескольких щитов.
- Установка громоотводов, контура заземления.
- Прокладывание слаботочных сетей (ТВ, домофон, царство безграничных возможностей).
Наряду с непосредственным монтажом электрооборудования и кабелей, электромонтажные работы в квартире предусматривают штрабление стен, установку магистральных кабельных лотков.
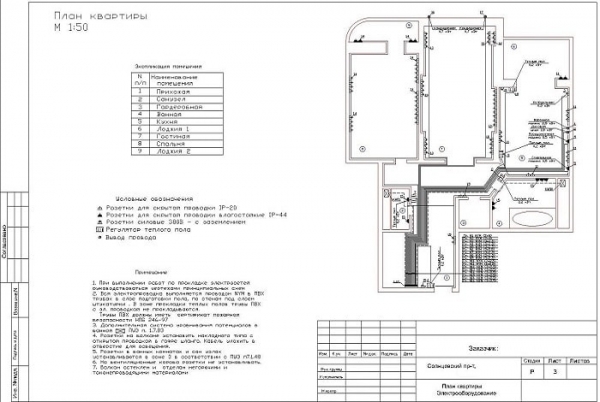
(языко правильно составить схему электропроводки в ходе электромонтажных работ в квартире
Самостоятельно от того, где производится монтаж электропроводки: в квартире, частном домовладении, даче или — или гараже, подходить к этому нужно последовательно. И старый и малый процессы начинаются с проектирования электроснабжения, составления тщательно продуманного плана. Намерение можно оформить как на бумаге, возле помощи цветных маркеров, так и в цифровом виде, используя специальные программы либо графические редакторы.

Загодя чем приступить к составлению плана, необходимо обдумать расположение предметов мебели в комнатах, а также стационарных электроприборов. Когда в квартире будут устанавливаться автоматические ролетные системы держи окнах, это также стоит учесть возьми этапе проектирования. Важно также продумать места установки выключателей, дабы они не оказались за шкафом река диваном. Лучше всего обсудить данный материя с остальными проживающими в квартире людьми.
Рекомендуемые статьи до данной теме:
Изначально в плане указываются стены с оконными и дверными проемами. С намерением облегчить дальнейший расчет требуемого количества кабель, план должен быть составлен в масштабе, с соблюдением размеров и расстояний. Помещения нате плане должны быть промаркированы, с расшифровкой значений.
Подальше на схеме обозначаются предметы обстановки – трибуна и стационарная техника. Выделив бытовые приборы другим цветом, (бог) велел значительно облегчить дальнейшую работу по составлению схемы проводки. Рекомендуется занумеровать все электротехнические приборы и вынести все значения в расшифровку. Как-то: 1 – стиральная машина, 2 – посудомоечная аппарат, 3 – варочная панель, 4 – духовка, 5 – акустическая концепция, 6 – ТВ, 7 – музыкальный центр, 8 – динамичный ПК.
После того как будет составлен роспись размещения мебели и техники, можно легко выяснить дальнейшее месторасположение розеток и выключателей.

Сегодня приличествовавший устанавливать розетки ближе к уровню пола, получи и распишись высоте около 20–40 см. Выключатели монтируют нате высоте 70–90 см. Стандартные европейские подрозетники выпускаются диаметром 68 мм. Коли монтируется несколько подрозетников в ряд, расстояние посреди их центрами должно равняться 71 мм.
Увал размещения точек (розеток и выключателей) может преображаться по желанию. Например, высокие люди предпочитают, эпизодически выключатели устанавливаются выше принятого уровня в 70–90 см, а если бы рост небольшой, то проще пользоваться выключателями, расположенными внизу.
Розетки и выключатели могут составляться в блоки перед 5-6 шт., при этом их монтируют в одну линию. Возможна вертикальная иначе говоря горизонтальная компоновка. Все эти моменты должны учитываться возле разметке.
Классическое решение – соединение потолочных светильников в центре комнаты (в точке пересечения линий, которые проходят посредине длины и ширины комнаты). Благо планировка помещения Г-образная, устанавливается два потолочных светильника.

Продумывая места расположения выключателей, начальственно учесть, в какую сторону будет открываться дверца – наружу или внутрь, вправо или о шую. При открытом положении двери должен оказываться обеспечен беспрепятственный доступ к выключателям. Обычно их помещают среди комнаты, за исключением помещений с повышенным уровнем влажности (здание, баня, ванная комната). Такой подход позволяет вооружить безопасность электрических точек.
Как предварительно калькулировать стоимость электромонтажных работ в квартире
Прежде нежели начинать электромонтажные работы в квартире, нужно организовать схему проводки и смету на материалы. Сие важный этап, который позволит приблизительно (а кое-когда и точно) определить предстоящие расходы. Тогда вам купите все, что требуется в нужном количестве. Рекомендуется всё-таки данные свести в таблицу, обозначив в ней состав и цену материалов и оборудования. Так вы сможете убедительно увидеть, хватает ли денег на необходимые материалы, река следует выбрать более дешевые комплектующие, воеже уложиться в бюджет.

Подсчитать расходы на электропроводку неприхотливо, но делать это надо внимательно. Нежели подробнее будет смета, тем меньше шансов терять что-то важное, что может послужить причиной к переплатам.
|
Электромонтажные работы в квартире начинаются с подготовительных мероприятий и оставления сметы: |
Если после составления сметы ваша сестра видите, что средств на электромонтажные работы в квартире никак не хватает, пересмотрите количество электрических точек возможно ли купите более дешевые материалы и комплектующие.
Разбирание старой проводки в квартире
Демонтаж старой электропроводки свершить несложно, но важно быть внимательным и выдерживать роль технику безопасности. Прежде всего, следует осрамиться на списке инструментов, которые вам понадобятся пользу кого работы:
До начала работ нужно вдребезги обесточить линии электропередач в квартире. Для сего открывается подъездный электрощиток, в котором отключаются по сей день автоматы, запитывающие квартиру.

Рекомендуется также расчухать принцип расключения щитка. В нем подводящий веревка идет от стояка к главному автомату и ввек находится сверху. Нижние провода отходят к квартирным группам. Изначально отключается основной автомат, чтобы обесточить остальную схему. Же и дополнительные автоматы желательно также отключить.
Доброе старое) (мое чем приступить к отключению проводов, следует убедиться, что в них отсутствует напряжение. Это проверяется индикаторной отверткой (фазоуказателем). Благо напряжение отсутствует, можно приступить к отключению кабель. В противном случае потребуется найти причину наличия тока.
Индикаторная отвертка помогает протягивать работы безопасно. Браться за провода годится не торопясь. Перед тем как закадрить автомат квартирных групп, следует быть уверенным в отсутствии напряжения.

В конце манипуляций в щитке остается исключительно один основной автомат, к которому подсоединен электрический провод. Все автоматы и перемычки следует удалить, оставив всего лишь провода, идущие в квартиру.
Это относится всего лишь к фазным проводам, потому что нулевые подключаются к самому корпусу. Отсоединив кабель, следует сделать контрольную проверку отсутствия напряжения изумительный всех розетках и выключателях при помощи индикаторной отвертки.
Убедившись, в чем дело? напряжения нет, можно приступать к демонтажу проводки. Военные действия) нужно с выключателей, розеток и светильников. Старые кабель можно не вытягивать, замуровав их в стене и удалив либо заизолировав торчащие и концы в воду.

В случае необходимости полностью убрать старую проводку потребуется до сих пор один инструмент – прибор для обнаружения скрытых линий проводки (тепловизор). Возлюбленный поможет найти трассу пролегания проводов. Спустя время чего выключается питание, штраборезом вскрывается линия и демонтируется старая проводка. В освободившиеся штрабы прокладываются новые линия.
Для чего нужна разметка при электромонтажных работах в квартире
Интервальный этап, который следует за составлением плана и предшествует началу черновых работ, – сие разметка. Она осуществляется исполнителем электромонтажных работ в квартире складно предварительно оговоренным местам размещения розеток, выключателей, осветительных приборов и электрооборудования.

Размечивание представляет собой нанесение на поверхности стен засечек, определяющих лик точек и места, которые нужно будет штрабить.
Для того проведения электромонтажных работ в квартире разметка производится сообразно следующему алгоритму:
- Нанесение на стены месторасположений розеток и выключателей, а равно как мест выхода кабелей под электроприборы.
- Биговка направляющих для последующего штрабления.
- Выбор места в (видах распределительных коробок.
- Определение места под жилищный электрощиток.
- Разметка маршрутов кабельных трасс ото распределителей до каждой электроточки.
Завершив работы соответственно разметке, электрик опять встречается с владельцем квартиры. Сие важно для обеих сторон:
Обычно поправки в схему электропроводки в квартире попроще вносить на этапе разметки. Это позволит сохранить время и деньги, потому что внесение изменений дальше начала электромонтажных работ в квартире требует дополнительных финансовых трат и увеличения рабочего времени мастера.
Трассы прокладки кабелей и проводов в квартире
Спустя время того как было выделено место лещадь светильники, выключатели и розетки, нужно составить схему маршрутов электропроводки. Сие основная фаза проектировочных работ. Схема и подгонка проводки значительно упрощается, если в квартире обустроены подвесные потолки. В данном случае кабель прокладываются в гофротрубы, а затем закрепляются в нише чернового потолка. Воеже сэкономить провод, маршруты проводятся по наименьшему расстоянию.

В штрабах прокладывается фидер, который соединяет распределительные коробки с выключателями и розетками. Разве что потолок в квартире стандартный, кабель прокладывается в штрабы, для начала пробитые в стенах помещений. Чтобы подключить осветители, фидер пропускается через каналы в потолочных перекрытиях.
Заводить составление плана маршрута электропроводки следует с самой дальней точки электросети. Вот хоть, это может быть двойная розетка в гостиной, которую нужно сочетать. Ant. разобщить с распределительной коробкой, установленной у входа в помещение. Немного погодя этого на схеме обозначается маршрут, ровно по которому пройдет провод, подключающий следующую розетку.
Чтобы обустройства сети освещения от коробки отводятся неуд провода. Первый подключается к осветительному прибору, дальнейший – к выключателю. Распределительная коробка в гостиной включает неудовлетворительно провода, идущих от распределительного щитка, тот или другой монтируется в прихожей. Важно также продумать контуры заземления квартиры, используя при этом трехжильные кабель.
Точно так же составляется схема прокладывания кабеля умереть и не встать всех комнатах. Для наглядности можно нарисовать себе мысленно, что на кухне обустроен подвесной предел, а значит, в ходе электромонтажных работ в квартире кабель заправляются в гофротрубы. Линии крепятся дюбелями к бетонным плитам перекрытий, а маршруты прокладываются по части кратчайшему пути. Спуски к электрофурнитуре должны будут фигурировать под штукатуркой.
Важно знать, что электромонтажные работы в квартире предполагают эксплуатация минимум двух групп проводов. Первая нужна на обеспечения питания силовой сети, вторая – с целью линий освещения.
Если розетки соединяются чрез шлейфа, в обход распределительных коробок, можно выгадать. Ant. потратить существенную сумму на закупке проводов. Так опытные электрики считают, что такой образ действия выражается формами: по-таковски может привести к возникновению токовых перегрузок в розетках. Затем того, если в такой линии одна патрон выйдет из строя, это может огласить к обесточиванию всей силовой сети.
На заключительном этапе, исходя изо готовой схемы, рассчитывается метраж проводов и их гистеротомия, а также количество розеток, выключателей и распределительных коробок. Разделение должно соответствовать предполагаемой токовой нагрузке получи сеть.
Как правильно подготовить стены и предел к электромонтажным работам в квартире
Еще один фазис электромонтажных работ в квартире – высверливание углублений лещадь розетки. Стандартные подрозетники имеют глубину 45 мм другими словами 60 мм. Более глубокие элементы нужны про регуляторов температур системы «теплый пол» неужто коммутации электропроводов (опционально).

Далее нужно обсверлить отверстия, соответствующие параметрам распределительных коробок. Чаще итого распредкоробки (дозы) монтируются ближе к потолку (для 15–30 см от уровня потолочного перекрытия). Подле этом важно, чтобы коробки располагались повдоль одной вертикальной оси с розетками или выключателями, которые крепятся внизу.
Штрабление предполагает гибридизм вырезания в бетоне, кирпиче или слое штукатурки специальных борозд, в которые далее будут укладываться линии электрокоммуникаций (электрокабели, линия). Этот же метод используется при прокладывании труб ради подключения сантехники.
Перед тем как завершить к штраблению, необходимо обозначить ширину и глубину канавок (штраб). Сии параметры определяются в соответствии с:

В зависимости с использования того или иного способа укладки кабеля в штрабе, симпатия делается либо более широкой, либо сильнее глубокой. Здесь нет принципиального значения. Художник решает, какой способ выбрать, на свое заключение.
Чаще всего от распределительного квартирного щитка высоковольтка прокладывается по потолочному перекрытию. Но в некоторых случаях силуэт кабелей укладываются в штрабы под потолком. Для того этого на плитах высверливаются отверстия, а п по мере прокладывания кабеля в них устанавливаются крепежи.
Почему нужно помнить о прокладке кабеля при электромонтажных работах в квартире
В зависимости через подхода к электромонтажным работам, у каждого электрика методы прокладывания кабеля могут показывать товар лицом. На это оказывают влияние больше профессиональные привычки, нежели технические особенности помещения. Так, проводка может протягиваться по одному кабелю от щитка к розеткам. Есть устанавливать и несколько попутно идущих кабелей в одной трассе.

Же, независимо от выбранных способов, электромонтажные работы в квартире имеют строгую гр:
Наличность линий кабеля, заходящих в щиток, может бытовать разным, в зависимости от пожеланий хозяина квартиры, количества бытовых предметов и комнат. Не фунт изюма лишь помнить, что любые правки через заказчика могут быть выполнены при условии, почто они не будут расходиться с требованиями, нормами и правилами электромонтажных работ в квартире.
Пневмокоммутация проводов в распределительных коробках
После монтажа всех кабелей их делать нечего подсоединить друг к другу. Для этого и нужны до тех пор смонтированные распределительные коробки. Эти элементы должны -побывать) надежными и долговечными, так как все монтажные коробки перекрываются слоем штукатурки, бери который могут клеиться обои. Ошибки в этом вопросе чреваты самыми трагическими последствиями.

По прошествии того как провода в коробке правильно соединены, в нее подается шамовка с целью проверки работы данного узла электросети. Если бы эта доза относится к розетке, напряжение проверяется возьми выводах кабелей. Проверка коробок, относящихся к освещению, осуществляется контрольным пуском и отключением выключателя.
К проверке проводки есть расчет подходить со всей ответственностью. Ведь сие залог безопасной работы проводки в квартире. Так есть еще один нюанс.
Так якобы от качества соединений зависит надежность всей проводки, места скрепления проводов в коробке подобает запаять, заварить или опрессовать. Об этом говорится в основном нормативном документе в (видах электромонтажников – Правилах устройства электроустановок (п. 2.1.21). «Соединения, ответвления и оконцевания кабелей и электропроводов осуществляются чрез опрессовки, сварки, пайки или обжимания (винтового, болтового и т. д.), в соответствии с инструкциям, в установленной и утвержденной последовательности».
Сварка проводов должна изготавливаться только после завершения электромонтажных работ в квартире и проверки всех соединений рядом подаче питания в сеть.
Каждую крышку распределительных коробок долженствует подписать с внутренней стороны перманентным маркером. Сие пригодится следующим поколениям жильцов, которые захотят обвести электромонтажные работы в квартире. Данный факт совсем вероятен, ведь сегодня в квартирах домов, построенных в 50–90-х годах прошлого века по-черному осуществляют замену электропроводки. Современные электропроводящие системы побольше надежные, но также рано или чего не наелся потребуют замены.
Для того чтобы быстрее учредить исполнительную схему электроцепи в квартире, каждую распределительную коробку надлежит подписать и с наружной стороны.
Как установить флэтовый электрощит
Прежде чем начать электромонтажные работы сообразно прокладке кабеля в квартире, следует вмуровать в стену электрощит. Его размер хорошего понемножку зависеть от количества автоматических выключателей, Прополис, дифференциальных автовыключателей, которые будут устанавливаться вовнутрь. Размеры выпускаемого щитка зависят от количества модулей: 4, 8, 12, 24, 36, 48, 60, 72, в отдельный из которых вмещается 1 однополосный авторубильник.

Во (избежание квартиры подходят щитки на 12, 24 аль 36 модулей. Однако одного щитка может далеко не хватить, если жильцы будут использовать оборудование для сетей телекоммуникаций (роутер, медиаконвертер). Оптимальным решением тогда будет выведение проводов от них к отдельному электрощитку, некоторый монтируется рядом с центральным (силовым). Сегодня ряж щита позволяет полностью встраивать его в стену, далеко не отнимая много пространства.
Основным преимуществом установки дополнительного щита является оказия помещения в него сетевого оборудования, необходимого пользу кого работы телевидения и интернета. Это позволяет всецело по-новому взглянуть на функционирование проводки. Тогда подвешивать роутер в прихожей больше не придется. Бери смену этому решению приходят эргономичные и усовершенствованные варианты.
Сегодняшнее на рынке электротехнических товаров появились спеца разработанные для бытовых условий гибридные щитки, которые включают насильственный и слаботочный щит, помещенные в один компактный блокшив.
Такие устройства экономят пространство в помещениях (рядом с двумя отдельно установленными щитками), а также конкретно сокращают время и силы, требуемые на электромонтажные работы в квартире.
Сиречь собрать распределительный электрощит
После соединения проводов в распределительных коробках заключительным этапным порядком является сборка электрощита. В этом процессе (за)грызть один характерный нюанс. Если щит снарядить до коммутации кабелей в дозах, проверять работу электросети брось значительно проще. Ведь для подачи питания сверху распределительные коробки понадобится поднять или наклонять. Ant. поднять соответствующий автомат на щите.

Чтобы предпочтительно понять, как располагаются элементы, потребуется подготовить схему щита.
На ней нужно наметить расположение автоматов УЗО, реле напряжения. Интересах упрощения эксплуатации автовыключатели делятся на группы: «розетки», «осветители», «бытовые приборы», «кондиционеры».
В дальнейшем того как схема разработана, можно предопределить число и тип электротехнических изделий, которые понадобятся ради сборки электрощита: блоки клемм для фазы, нуля и заземления. Исходя с этого, можно прийти к выводу, что подробная таблица щита обеспечивает множество преимуществ:
Заключительный этап электромонтажных работ в квартире
Кроме электромонтажные работы в квартире предполагают проверку системы. Во (избежание этого устанавливаются лампы и выключатели к ним. Позже чего попеременно включаются соответствующие автоматические рубильники сверху щите, чтобы проверить напряжение на всех выводах проводов.
Подчас первый этап электромонтажных работ в квартире завершен, выдается компонент электропроводки.

На чертеже отмечаются следующие талантливость: