Дизайн однокомнатной квартиры 35 кв. м – фото, лучшие варианты планировок
Владельцы однокомнатных квартир всегда сталкиваются с проблемой создания красивого, но при этом вместительного и функционального интерьера. Сегодня мы расскажем про дизайн однокомнатной квартиры 35 кв. м, фото лучших идей будут приведены ниже. Также мы поможем с решением различных вопросов, касающихся этой проблемы.

Дизайн однокомнатной квартиры 35 кв. м – фото

Однокомнатная квартира-студия в хрущевке
Как правильно подготовиться к ремонту?
До того как приступать непосредственно к ремонтным работам, составьте перечень всего необходимого, предметов мебели, которые будут присутствовать в вашей квартире. В зависимости от количества членов семьи учитывайте число систем хранения и спальных мест с обязательным указанием всего этого в упомянутом списке.

Дизайн гостиной комнаты с совмещенной кухней
Для упрощения ориентации в пространстве составьте план квартиры, укажите там, где и что будет находиться. При необходимости можете дополнительно изготовить картонный макет, позволяющий переставлять вещи столько, сколько потребуется для идеального их расположения. Как вариант – можно использовать специальную программу, позволяющую увидеть проект в трехмерном режиме.

Программы для проектирования домов и квартир
Обратите внимание! Важно иметь под рукой и технический план жилища – он поможет выяснить, какие стены можно снести для объединения пространства, а какие несущие. После подобного объединения жилье сразу станет более просторным и функциональным.

При этом планировка и интерьер квартиры требует разработки плана в отношении расположения вещей
Решите заранее, где будут находиться телевизор, стиральная машинка, холодильник и прочая бытовая техника, работающая от электросети. Если грамотно расположите розетки, то в будущем сможете обойтись без использования неудобных удлинителей, с которым квартира будет выглядеть захламленной.

Дизайн-проект однокомнатной квартиры
Определившись с местом для шкафа, подумайте над целесообразностью использования встроенной модели с дверью-купе. В таком случае придется устанавливать дополнительную стенку шкафа – как правило, для этого используется гипсокартон. Благодаря подобной конструкции можно вместить больше вещей, заметно сэкономить свободное место, если сравнивать с традиционным шкафом-купе.

Как выглядит квартира-студия

Рациональное использование пространства в спальне с помощью гардеробных систем
На заметку! Также решите, какой будет общая стилистика квартиры. Если площадь небольшая, то все жилище лучше выдержать в едином стиле. Ведь для малогабаритной квартиры на 35 квадратов, например, дворцовый стиль будет неуместным, а вот минимализм подойдет как нельзя кстати. Словом, учитывайте особенности помещения.

Минималистический интерьер идеально подойдет для небольшой однокомнатной квартиры

Смета на ремонт квартиры
Несколько полезных советов
Чтобы удачно сделать ремонт и жить в квартире с комфортом, советуем учитывать такие моменты.
-
Цвет стен должен быть светлым, пастельным. Их лучше всего оклеить обоями или покрасить.

Стены лучше сделать светлыми

Комната в светлых тонах
Пространство можно визуально расширить при помощи глянцевых и зеркальных поверхностей. Поставьте шкаф с зеркальными дверками, в результате комната будет выглядеть более светлой и просторной.

Зеркальные поверхности расширяют пространство
Важно, чтобы обои не были с крупным рисунком (он будет не только визуально уменьшать пространство, но еще и быстро надоест и начнет раздражать). Благодаря вертикальным полосам потолок можно «поднять», а с помощью горизонтальных – сделать комнату шире. К слову, эти два типа полосок можно и комбинировать друг с другом.

Горизонтальные полоски сделают комнату шире
Мебель используйте только самую необходимую. Из-за чрезмерного количества комодов и стульев свободного пространства останется минимум, а еще квартира будет выглядеть загроможденной.
Поставьте шкаф, изготовленный по индивидуальному заказу. В таком случае будут учтены все ваши требования и пожелания, а еще вы используете доступное пространство по максимуму.
Мебель-трансформеры – отличный вариант для малогабаритной квартиры. Такая мебель удобна, компактна и функциональна.

Кровать-трансформер

Такая кровать отлично подойдет для маленькой квартиры
В детский уголок можно установить кровать-чердак, под которой будет располагаться письменный стол. Если детей двое, можно использовать двухъярусную кровать.

Детская кровать-чердак
Наконец, откажитесь от многочисленных элементов декора. Все эти горшки, вазы и т. д. загромоздят квартиру, сделают ее пестрой и неуютной.

Стиль минимализм в интерьере квартиры
Как расширить пространство?
При составлении современных проектов заказчик может самостоятельно решать, какой будет планировка квартиры. Если она в новостройке, то есть много возможностей в плане сноса/монтажа межкомнатных перегородок. Если же квартира куплена на вторичном рынке, то снос стен стоит рассмотреть, ведь они вместе с дверями занимают много места, а в открытом пространстве можно разместить больше предметов мебели.

Наличие квартиры с одной комнатой дает возможность качественно обустроить каждый квадратный метр

Объединение комнат в квартире в новостройке
Таблица. Какие перегородки можно сносить в однокомнатной квартире.
| Наименование, фото | Краткое описание |
|---|---|
|
Между ванной и туалетом |
Эти помещения в маленьких квартирах обычно миниатюрны, и если снести между ними стену, то можно будет установить полноценную раковину или стиральную машинку. |
|
Между лоджией и жилой частью квартиры |
При желании лоджию можно утеплить и присоединить к самой квартире. Это, конечно, не обязательно, но на утепленной лоджии можно расположить, скажем, рабочий кабинет. |
|
Между кухней и комнатой |
Это может оказаться полезным, если вы проживаете в квартире один или со своей второй половинкой. А если есть дети, то данные помещения лучше не объединять. |
Обратите внимание! Все перепланировки должны в обязательном порядке согласовываться с БТИ, в противном случае они не будут считаться законными.

Дизайн квартиры-студии – это абсолютная свобода
О способах зонирования
Для начала заметим, что зонирование бывает как чисто визуальным, так и функциональным. В первом случае речь идет о комбинации цветов пола и стен – например, сделать гостиную однотонной, а стены кухни оклеить обоями с рисунком. Для декорирования зоны за телевизором лучше использовать панно из фотообоев (или что-то подобное).

Декор квартиры-студии

Телевизор является важным предметом большинства интерьеров в наши дни
Еще один метод зонировать пространство – установить ширмы. Они могут быть как прозрачными, так и полупрозрачными, но в любом случае создают чувство уединенности и некой невесомости одновременно; с помощью глухих ширм можно скрыть от сторонних глаз все, что хочется. Существуют еще и зеркальные ширмы, которые, помимо всего прочего, еще и визуально увеличивают пространство примерно в два раза.

Зонирование с помощью ширмы
Следующим приемом зонирования является обустройство подиумов. Можно, к примеру, приподнять спальную зону по отношению к гостиной, а в пространстве под подиумом сделать систему хранения с выдвижными ящиками.

Создание подиумов – еще один пример грамотного зонирования
На заметку! Для ограждения части комнаты также можно использовать гипсокартонную перегородку. Сам гипсокартон достаточно тонкий, а потому перегородка из него много места не займет.

Гипсокартонная перегородка в дизайне
Еще одним популярным методом разделения пространства, который используется повсеместно, является применение раздвижных перегородок наподобие дверей-купе. Если перегородки сдвинуть, то квартире станет одной светлой и большой комнатой, а если разложить, то двумя миниатюрными помещениями. Это оптимальный вариант для семей с детьми.

Пример использования раздвижной перегородки

Стеклянная перегородка
Чтобы по максимуму сэкономить пространство, можете установить для зонирования барную стойку между гостиной и кухней. Так вы избавитесь от объемной обеденной группы, а вместо стола будете использовать саму стойку.

Проект кухни в студии, где зонирующей чертой выступает барная стойка

Интерьер маленькой квартиры в стиле арт-деко
На заметку! Также рабочее пространство может быть своего рода продолжением подоконника. Будет выглядеть модно и стильно, а еще это отличный способ сэкономить пространство.

Стол как продолжение подоконника
Еще одним важным моментом является правильное освещение. Позаботьтесь, чтобы у каждой зоны был свой источник света, в качестве которого может выступать светодиодная лента, точечные светильники, люстра. Жилую зону лучше оснастить именно люстрой, а спальню – двумя бра над изголовьем кровати. Оптимальный вариант для рабочей зоны – ряд точечных светильников или настольная лампа.

Правильное освещение также очень важно
О стиле и сочетании цветов
Характерная особенность маленькой квартиры в том, что ее дизайн должен быть не только привлекательным, но и комфортным для проживания. Поэтому излишней яркости и темных цветов, а также пестрых обоев лучше избегать, равно как и рисунков с крупными элементами.
На заметку! Лучше всего подходит для такой квартиры стили минимализм, лофт, хай-тек.

Кухня в студии

Продуманный рациональный дизайн квартиры-студии

Минимализм в квартире
В миниатюрных квартирах потолки невысокие, поэтому от лепнины, цветных и ярких потолков стоит отказаться, т. к. они лишь усугубят данный недостаток. А вот светлая матовая либо глянцевая структура подойдет для этого идеально!

Современные маленькие кухни отличаются функционально продуманным дизайном
Светлые стены – а именно светло-серые, бежевые, чисто-белые или цвета кофе с молоком – также придутся очень кстати.

Распространёнными материалами, как из однокомнатной квартиры сделать двухкомнатную, являются кирпич, гипсокартон, стеклоблоки и мебель
Обратите внимание! В последние годы все большей популярностью пользуется сочетание окрашенных стен или однотонных обоев с декоративной штукатуркой, кладкой (из камня или кирпича), специальным ламинатом для стен. Все это выгодно будет смотреться в гостиной, освежая интерьер.

Интерьер гостиной в маленькой квартире может быть самым разнообразным. Самое главное – это продумать всю композицию
От дверей лучше вообще отказаться (оставить только в туалет), ведь в открытом положении они будут «красть» сантиметры свободного пространства. Или, как вариант, можно установить раздвижные пенальные двери, полотно которых будет прятаться внутрь стен.

Можете установить раздвижные двери
Также можно сделать небольшие акценты, способные придать интерьеру динамичности. Это может быть, к примеру, кухонный фартук, шторы, люстра или драпировка стульев. В гостиной это может быть ковер, диванные подушки. Если она объединена с кухней, то акценты могут как бы перекликаться, создавая пространство в едином стиле.

На фото представлен интерьер квартиры-студии
Несколько оригинальных идей оформления
Самый удачный вариант – это упомянутая выше барная стойка. Благодаря ей квартира выглядит больше, привлекательнее и светлее.

Барная стойка сегодня очень популярна

Еще один вариант барной стойки
На заметку! Ширма даст возможность отдохнуть и уединиться, но при этом не загромоздит интерьер.

Ширма в маленькой квартире поможет уединиться и отдохнуть
Правильное использование подиума позволит добиться уникального интерьера и, если потребуется, сделать из гостиной спальню.

Как создать интересный проект для дизайна однокомнатной квартиры
Лучшие проекты однокомнатных квартир площадью 35 кв. м
Предлагаем ознакомиться с чудесными фото-проектами, позволяющими наделить квартиру не только эффектным интерьером, но и собственным характером!
Проект №1. Женская привлекательность с мужским характером
Перед вами строгая, но очаровательная элитная квартира. В проекте используются следующие цвета:
-
черный;
цвет «маренго»;
дымчатый;
ярко-алый;
салатовый;
белый.

Дизайн с мужским характером и женской привлекательностью

Гостиная в квартире

Красивая кухня

Ванная комната

Обеденная зона

Яркий туалет
Сама квартира в этом проекте состоит из:
-
кухни;
основной комнаты (здесь расположены и гостиная, и спальня, и рабочий кабинет);
санузла.
Привлекательный и современный вариант дизайна. Практичная общая комната, идеально вписывающиеся предметы интерьера, просторная ванная и привлекательная кухня – все это можно найти здесь.

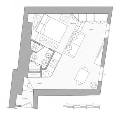
Планировка этой квартиры
Проект №2. Дерзость и простота
Простой, легкий, но при этом вызывающий дизайн. Состоит из следующих цветов:
-
молочный;
песочный;
белый;
винные/дымчатые тона.

План-проект этой оригинальной квартиры
Получилась оригинальная квартира-студия, вмещающая в себя спальню-гостиную, рабочий кабинет, санузел и кухню-столовую. Это идеальное жилье для людей творческих профессий, которые не любят стереотипов, рамок и нуждаются в свободе действий.

35 кв. м. дерзкой простоты

Каждый оттенок, гармонично переплетаясь, создает воздушную композицию

Цветовая гамма представлена молочными, белоснежными, песочными, дымчатыми и винными тонами

Ванная комната не менее оригинальна

Мебель, облицовочный материал соответствуют духу лофта

Особого внимания заслуживает кухня
Проект №3. Таинственный дизайн квартиры
Интересный и загадочный дизайн. В интерьере квартиры использовались следующие цвета:
-
шоколадный;
светло-бежевый;
белоснежный;
дымчатый.

Дизайн, окутанный тайной

Проект квартиры
Акцентом выступают розовый и бирюзовый цвета. Стены квартиры снесли, в результате чего образовались следующие функциональные зоны:
-
спальня;
санузел;
кухня;
гостиная.
Помимо того, дизайнером предусмотрена и спальная зона для гостей, а также многочисленные скрытые места, где можно хранить различные вещи. Одна стена квартиры оформлена декоративным кирпичом, благодаря чему стала истинной изюминкой интерьера!

Благодаря сносу стен квартиру удалось разделить на функциональные зоны

Дизайн представленной однокомнатной квартиры загадочен, привлекателен и интересен

Дизайнеры предусмотрели даже спальную зону для гостей и множество скрытых мест для хранения всевозможных вещей

В санузле приятно не только осуществлять гигиенические процедуры, но и подумать, расслабиться
Проект №4. Стильно, но практично
Простой и многофункциональный дизайн интерьера, выглядящий очень даже эффектно.

Дизайн интерьера этой однокомнатной квартиры многофункционален, прост, но в то же время невероятно эффектен
Использованы следующие цвета:
-
белый;
антрацитовый;
дымчатый;
золотисто-белый;
песочный.

Перепланировка позволила поделить квартиру на множество зон

В уютной и радушной гостиной гармонично расположены предметы обстановки, которые прекрасно дополняют друг друга

Кухня, на первый взгляд, кажется скромной, но в многочисленных ящичках скрывается инновационная техника, значительно облегчающая жизнь своей хозяйке

Спальня зонирована с помощью подиума

Изюминка ванной комнаты – кирпичная стена, покрашенная золотисто-белой краской, что прибавляет интерьеру сказочности
Отдельного внимания заслуживает ванная. Ее изюминкой является золотисто-белая кирпичная стена, благодаря которой интерьер выглядит сказочным. Все предметы мебели расставлены гармонично, поэтому жилье выглядит просторным, уютным и роскошным.


