Норвежская рубка. Дома и бани из лафета
Технология норвежской рубки была разработана в скандинавских странах. Уникальность этой методики состоит в самостоятельном, то есть под действием только собственной силы тяжести, заклинивании сложных замков сруба. Конечно, в классической русской рубке, бревна после усушки так же заклиниваются, но для строительства домов с норвежским замком применяется не круглое бревно, а лафет.

Традиционный скандинавский деревянный дом
Лафет или laft, как говорят шведы и норвежцы, — это пиломатериал с овальным сечением, идеально остроганный. Противоположные вертикальные стенки лафета абсолютно ровные и прямые. Часто строители лафет именуют полубрусом или двукантным брусом. Угловое соединение лафета «норвежский замок» отличается минимальной продуваемостью, то есть практически полной способностью исключения прямого попадания воздуха извне внутрь помещений.

Дом из лафета

Баня из лафета
Производство и характеристики лафета
Для изготовления полубруса используется сосновая, кедровая или дубовая древесина, а именно бревна диаметром 330-600 мм и более, исключительно естественной влажности. Минимальный диаметр бревна может составлять 280 мм.
Для предотвращения трещинообразования на бревнах делают продольные пропилы еще в период сушки. После завершения строительства и окончательной усушки древесины (этот период занимает до 4-5 лет), величина усадки стен в среднем составляет от 5 до 15 см (соответственно для одно- и двухэтажной постройки).
Лафет можно изготовить вручную, но оптимальнее заказать раскрой на пилораме. Там с каждого бревна удалят боковины, после чего с полукруглых концов понадобится стесать кору.

Принцип раскроя бревна

Полубрус (лафет)
Окорение производят вручную, используя электрорубанок. Подготовленный к вырубке замков двукантный полубрус полностью белый, имеет толщину от 200 до 220 мм и высоту минимум 28-40 мм.

Норвежский лафет
Снятый при распиле горбыль не идет в утиль, его применяют для обустройства черновых полов и крыши.
Особенности норвежской рубки и строительства из лафета
Норвежская технология имеет ряд неоспоримых достоинств.
Первое из них — максимально высокий показатель теплосбережения. За счет своей сложности норвежский замок является самым теплым видом соединения из всех существующих. Если обратить внимание на высоту лафета, то можно заметить, что всего 3-4 полубруса дадут прирост высоты примерно 1 метр и более. Для возведения одноэтажного дома достаточно 10-12 венцов. Соответственно, меньшее количество соединений и стыков положительно влияет на общую герметичность постройки.
Второе достоинство — одинаковая по всей площади толщина стен, в свою очередь достаточная для качественной тепло- и звуклоизоляции. По своим техническим характеристикам деревянные стены двадцатисантиметровой толщины соответствуют кирпичной кладке толщиной до ста сантиметров.
Теплопроводность:
Необходимость дополнительно утеплять стены из лафета отсутствует. Налицо экономия финансовых средств и сокращение затрат на строительство. Древесина нуждается только в периодической обработке пропитками-антисептиками или окрашивании, закрывать стены вентфасадами снаружи или производить отделку вагонкой изнутри не нужно ввиду внешней эстетичности и привлекательности стен в целом.
Гладкая ровная поверхность стен не крадет лишней жилой площади, как, например, кругляк. Постройки из лафета легко проектировать, монтаж любых коммуникаций в стенах производится без особых сложностей. На гладкие стены можно вешать любые полки, закреплять банные полоки и шкафчики, размещать в помещении утварь, мебель. Это третье достоинство технологии.

Предбанник в бане из лафета
Четвертое преимущество — надежность. Конструкции, построенные по норвежской технологии, очень устойчивые и безупречно жесткие. Деформация в процессе усушки отсутствует как таковая. Заклиненные под своим весом бревна технически не могут повернуться в замках.
Пятое, не менее важное достоинство, — это экологичность. Древесина не подлежит обработке клеящими составами и опасными химикатами, как, например, клееный брус.
Разрушить постройку из двукантного полубруса laft крайне сложно. Жесткие стены образуют единое целое с фронтонами. А роль стропил выполняют слеги — бревна большого диаметра, соединяющие противоположные фронтоны.
Постройка из лафета прослужит очень долго и будет выгодно выделяться среди соседних домов из камня, кирпича. Главное — правильно обустроить фундамент с учетом близости грунтовых вод (древесина имеет свойство накапливать влагу из почвы) и не забывать про обработку древесины антисептиком / огнебиозащитой / красками или лаками.
Норвежские чаши: сравниваем с русской рубкой

Технологичность норвежской рубки
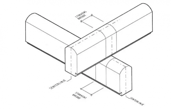
Угловое соединение несколько похоже на классическую русскую рубку «в обло», то есть с остатком или выступающими торцами. Однако, если в русской рубке чаши полукруглой формы, то норвежской замок имеет потайной клин (шип), который входит в паз нижнего венца, а сверху замок напоминает «седло».
В угловых соединениях по русской методике у каждого венца сверху вырубается чаша или полукруглый паз. В этот паз укладывают межвенцовый утеплитель, который не защищен от проникновения влаги и продувания. Норвежский замок исключает эти недостатки. Потайной шип, расположенный снизу венца, служит своеобразной преградой для влаги и ветра, при этом дополнительные теплоизоляторы не применяются.

Норвежский замок
В процессе усадки венцы скандинавского сруба растрескиваются, но трещины никак не влияют на прочностные или изоляционные характеристики. Владельцы таких срубов считают, что мелкие трещинки только украшают дом и подчеркивают натуральность материала.
Основные этапы сборки скандинавского сруба
Сначала готовят проект сруба. На чертежах отмечают места прокладки труб, электрических проводов с учетом нагрузок и конструктивных узлов. Обязательно выполняют 3D моделирование сруба на выбранном типе фундамента.
Лафет готовят к сборке в два основных этапа:
Чаши изначально размечают «начерно», то есть неидеальную заготовку выпиливают бензопилой. Разметка в этом случае ведется с обязательным использованием гидроуровня. Черновая чашка соответствует профилю нижнего поперечного венца. Перед чистовой разметкой и рубкой чистовой чаши осуществляется подгонка венцов и их маркировка.
Пазы выбирают вручную, используя тесло или прямой топор. Для облегчения задачи, перед этим бензопилой делают продольные пропилы.
Для сверления применяется бур диаметром 30 мм. Отверстия под нагели должны располагаться в шахматном порядке. В тело нижнего венца (лафета) нагель заходит максимум на 150 мм. Шаг между нагелями — до двух метров.
Сруб сначала в обязательном порядке собирают без нагелей, проверяют и устраняют все недочеты. Только после этого производится капитальная сборка венцов сруба на фундаменте. Первый венец должен лежать на антисептированных закладных досках толщиной до 6 см. Сборку тяжелых венцов удобнее производить автокраном. Подгонку верхних венцов производят, устанавливая строительные леса. Проемы для окон и дверей выпиливают сразу в процессе сборки (сразу с торцовкой).
Фронтоны собирают так же из лафета. Технология идентична сборке стен сруба. В вырубленные фронтоны закрепляют врубкой коньковый брус и слеги (именно в бревнах фронтона рубят чаши для укладки конька и торцов слегов, иначе не будет обеспечена надлежащая прочность). Последний этап работы — опиловка торцов фронтонов согласно выбранному уклону кровли. Сама кровля может быть любой, предпочтительны утепленные варианты.

Шведский сруб из полубруса (лафета) с мощными балками кровли
Крайне важно использовать компенсаторы для всех вертикальных элементов сруба. Эти элементы не позволят нарушиться геометрии постройки.
Окна и двери рекомендуется устанавливать спустя некоторое время после строительства. Такая мера связана с неравномерностью усадки древесины под действием солнечных (ИК) лучей и необходимостью качественного вентилирования внутренних помещений.
Отделку полов и потолка можно выбирать на усмотрение владельца. Стены же после завершения строительства подвергают тщательной шлифовке, после чего покрывают пропитками с пчелиным воском. Здесь важно не спешить с окрашиванием или лакированием, так как большинство производителей указывают, что древесина перед обработкой может быть влажной максимум на 12-14%. Большее содержание влаги в древесине приведет к изменению свойств и оттенка нанесенного на стены состава.

Окрашенные поверхности стен
В уборных, где предполагается отделка стен кафелем, изначально производится монтаж влагостойких листов гипсокартона. Листы монтируют на каркас с подвижными кронштейнами, к которым фиксируются направляющие.
Снаружи стены можно покрыть составом с содержанием льняного масла. Трещинки на срубе конопатить или шпатлевать нет необходимости.
Все коммуникации в скандинавских срубах прокладывают в соответствии с правилами обустройства деревянных домов.
- Радиаторы навешивают на кронштейны, вбитые в стены. Подводка труб производится по межэтажным перекрытиям и вертикальным коробам.
- Разводку водопроводных и канализационных труб аналогично протягивают в коробах, расположенных в ванных комнатах или уборных дома / бани.
- Электрические провода тянут таким образом, чтобы в любой момент можно было осуществить ремонт сети. Изолируют провода металлорукавами, металлическими трубами или пластиковыми трубами (слаботочные сети).
- Для скрытой проводки в толще стен делают неглубокие штробы. Для распред. коробок и розеток в древесине пробуривают выемки нужного размера. Можно укладывать провода за плинтусами и в штробах за дверными коробками. Если весь объем проводов не вмещается за плинтус, то допустимо штробление горизонтального канала в венце сруба (максимум пятисантиметровая глубина штробы).
- К потолочным светильникам проводку тянут по межэтажным перекрытиям.

Внутреннее убранство двухэтажного дома из лафета
Норвежские замки будет сложно сделать новичку. На подготовку материала и рубку уйдет гораздо больше времени, чем на строительство русского сруба. Только на укладку венцов требуется минимум две недели, поэтому стоит заранее оценить свои силы и количество отведенного на строительство времени.
Как разметить и вырубить угловое соединение своими руками
Шаг 1. Начинаем разметку с отметки осей и крайних линий соединяемых брусов. Используя гидроуровень, верхний брус выставляем ровно по вертикали и оси стен.

Шаг 1

Выставляем брус по уровню
Шаг 2. На второй схеме вид бруса сверху. Необходимо отметить положение квадрата. От этой разметки будет вестись дальнейшее вычерчивание элементов замка.

Шаг 2

Крупным планом показан квадрат

Дальше идёт черновая разметка

Чертим на лафете разметку
Шаг 3. На схеме изображен нижний брус, боковая часть. Необходимо продлить линии начерченного квадрата так, чтобы они соединились с линией центра бруса (эта линия — условный «горизонт»).

Шаг 3
Шаг 4. На схеме показан нижний брус, его верхняя часть. Необходимо через углы квадрата провести прямые линии по направлению к точке «5 cm».

Шаг 4
Шаг 5. Тот же брус, но вид сбоку. Соединяем отметки «5 cm» с «3 cm».

Шаг 5
Шаг 6. Результат показан на схеме.

Шаг 6

Начертание дуги
Шаг 7. Выполняем распил.

Шаг 7
Шаг 8. Убираем лишнюю древесину.
Шаг 9. На другой стороне бруса необходимо сделать аналогичную разметку и стесать древесину. Для этого проделываем ряд действий с четвертого по восьмой шаги. Сразу после этого по схемам работаем с нижней плоскостью бруса, который находится сверху.

Шаг 9
Производим сопряжение узла.
Шаг 10. В процессе начертания пользуемся линейкой. Переносим на верхний брус профиль нижней «щеки».

Шаг 10 а
Параллельно проецируем линии «щек» на нижний брус. Эти линии должны пересекаться с дугой, при этом крайние точки дуги не должны выступать за границу самого бруса.
Линии края бруса и крайние точки чаши можно перенести снизу вверх, пользуясь уровнем.

Шаг 10 б
Откладываем по линии щеки высоту чашки. Переносим точку по линии.

Шаг 10 в
Шаг 11. Результат показан на схеме.

Шаг 11
Шаг 12. На верхнем брусе намечаем положение шипа, предварительно отступив определенное расстояние (1/2h).

Шаг 12
Шаг 13. Показана схема разметки.

Шаг 13
Шаг 14. Вырубаем шип.

Шаг 14
Шаг 15. Вырубаем паз под шип.

Шаг 15
Важно! Все вырубленные элементы перед окончательным соединением обязательно обработайте антисептиком для древесины!
Шаг 16. Стыкуем элементы, на расположенном сверху брусе вырубаем «щеки».

Шаг 16
Шаг 17. Начинаем работу с брусом для следующего венца. Начинаем с нахождения и отметки условной средней линии. При необходимости оставляем зазор в чашке для утеплителя. Шип сознательно поднимается над нижним на один сантиметр.

Шаг 17
Зазор в пазу при норвежской рубке должен быть такой — в первых трех венцах — три сегмента складного плотницкого метра, в следующих трех — два и т.д.
Когда метр уже не проходит ни единым сегментом, то в венцах, которые выше, должен свободно помещаться в паз тонкий катет плотницкого уголка из стали.
Шаг 18. На верхнем брусе делаем щеки и шип как было описано ранее, готовимся к причерчиванию продольного паза.

Шаг 18
Шаг 19. Описание процесса причерчивания продольного паза пропускаем, описание можно найти выше. На схеме показан итоговый результат.

Шаг 19

Начало рубки, чаша

Вырублены щеки

Вырублен потайной шип

Вид с другой стороны

Укладываем венец и ведем разметку дальше

Сборка венцов сруба

Разметка ближе

Снимаем и обрисовываем

Выпиливаем, выбиваем и делаем верхние щеки

Делаем продольные пропилы

Используемый инструмент

Вбиваем клинья в пропил

Увеличиваем количество пропилов

Вручную убираем лишнюю древесину

На фото уложенные венцы стянуты ремнем

Вид сверху на угловое соединение

Дом из лафета. Норвежский замок