Как правильно залить фундамент под баню
Обустройство фундамента – один из первых и наиболее важных этапов выполнения строительных работ. В собственном фундаменте нуждается любая постройка, будь то легкий сарай из досок, компактная баня, небольшой каркасный дом или огромный частный особняк из каменных материалов.

Как правильно залить фундамент под баню своими руками
Среди всех существующих разновидностей опорных конструкций наибольшую популярность получили ленточные фундаменты: они подходят для использования в самых разнообразных условиях, отличаются сравнительной простотой обустройства и в целом добросовестно справляются со всеми возлагаемыми на них задачами.
Файл для скачивания: СНиП 3.02.01-87 ЗЕМЛЯНЫЕ СООРУЖЕНИЯ, ОСНОВАНИЯ И ФУНДАМЕНТЫ
СНиП 3.02.01-87
Ознакомившись с нижеизложенной информацией, вы получите полное представление о существующих разновидностях ленточных фундаментов и сферах их применения, требованиях к подобного рода конструкциям, изучите теоретические аспекты в отношении каждого ключевого этапа возведения такой опоры и пошаговую практическую инструкцию с иллюстрациями.
Сферы применения оснований ленточного типа

Схема ленточного фундамента
Ленточные фундаменты успешно зарекомендовали себя при выполнении нижеперечисленных работ:
Рассматриваемое основание является практически полностью универсальным – бетонную ленту не получится обустроить разве что на торфянике или просадочном грунте. Обязательно учитывайте данный момент при самостоятельном обустройстве опорной конструкции и ознакомьтесь с ключевыми требованиями, предъявляемыми к ленточным фундаментам.
Файл для скачивания: СНиП 2.02.01-83. Основания зданий и сооружений
СНиП 2.02.01-83
Основные требования к ленточным фундаментам
Главной характеристикой ленточного фундамента является глубина его залегания. При выборе подходящего значения учитывается, во-первых, характер грунта на строительной площадке, во-вторых, тип постройки, для возведения которой обустраивается бетонная опора. Информация в отношении этих моментов приведена в следующей таблице.
Таблица 1. Необходимая глубина залегания ленточного фундамента для бани, см
| Возводящаяся постройка | Каменистая почва | Плотные глинистые и суглинистые грунты | Песчаники, состоящие из слежавшегося сухого песка | Илистые грунты, мягкие песчаники | Очень мягкие песчаники, илистые почвы, супеси | Торфяные грунты |
|---|---|---|---|---|---|---|
| Компактная одноэтажная баня | 20 | 30 | 40 | 45 | 65 | Ленточный фундамент не применяется |
| Дом-баня с мансардой | 30 | 35 | 60 | 65 | 85 | Ленточный фундамент не применяется |
В таблице приведены усредненные значения. В целом необходимую глубину ленточного фундамента лучше уточнять в индивидуальном порядке, в полной мере оценивая особенности климата в месте проведения строительных работ и характеристики непосредственно площадки (тип почвы, глубина прохождения подземных вод и т.п.).
Виды ленточных фундаментов
В настоящее время существует достаточно много разновидностей ленточных фундаментов. Они применяются при выполнении разных строительных работ и имеют ряд конструктивных отличий, но возводятся в целом по аналогичной технологии.
Наиболее простая разновидность рассматриваемой опоры – ленточный монолитный пояс.

Ленточный монолитный пояс
Конструкция применяется преимущественно на участках с высоким уровнем грунтовых вод при возведении небольших легких построек. Хорошо подойдет для компактной каркасной бани, к примеру, 3х3 или 4х4, не создающей существенной нагрузки на основание.
Второй тип – незаглубленный ленточный фундамент. По сути, представляет собой тот же ленточный монолитный пояс, только непосредственно бетонная часть конструкции здесь поставлена на ребро.

Незаглубленный ленточный фундамент
Данная разновидность фундамента характеризуется увеличенной высокой прочностью на изгиб, что позволяет ставить на опору более серьезные по своим характеристикам постройки, к примеру, из оцилиндрованного бревна.
Важно! На монолитный пояс и мелкозаглубленный фундамент никакие каменные постройки ставить нельзя.
Третья разновидность рассматриваемых опор – мелкозаглубленный ленточный фундамент.

Мелкозаглубленный ленточный фундамент
Конструкция применяется преимущественно на участках, где уровень грунтовых вод проходит на глубине более 1 м. Примерно половина высоты бетонной части заглубляется в землю. Если грунтовые воды проходят выше упомянутой отметки, смысла в обустройстве мелкозаглубленной ленты не будет: в данном случае придется делать дренаж, что чревато дополнительными трудовыми, финансовыми и временными затратами.
Четвертый тип – Т-образный ленточный фундамент.

Т-образный ленточный фундамент
Первая лента здесь лежит на боку, вторая – стоит на ребре. Подобная связка образует очень жесткую конструкцию. На такой фундамент можно ставить каменные дома. Смысла в применении Т-образного фундамента при возведении небольшой частной бани, как правило, нет. Рекомендованное заглубление – от 1 м. Важным условием при обустройстве такой опорной конструкции является отсутствие грунтовой воды по всей глубине заложения ленты, т.к. под давлением жидкости фундамент деформируется и разрушится, что сделает эксплуатацию установленного сверху строения невозможной.
Пятая разновидность рассматриваемого основания – ленточный заглубленный фундамент.

Ленточный заглубленный фундамент
Минимальное заглубление – 1,5 м. Конкретное значение определяется глубиной промерзания грунта – основание бетонной конструкции должно находиться ниже упомянутого показателя.
| Регионы | Глубина промерзания грунта, см |
|---|---|
| Воркута, Сургут, Нижневартовск, Салехард | 240 |
| Омск, Новосибирск | 220 |
| Тобольск, Петропавловск | 210 |
| Курган, Кустанай | 200 |
| Екатеринбург, Челябинск, Пермь | 190 |
| Сыктывкар, Уфа, Актюбинск, Оренбург | 180 |
| Киров, Ижевск, Казань, Ульяновск | 170 |
| Самара, Уральск | 160 |
| Вологда, Кострома, Пенза, Саратов | 150 |
| Воронеж, Пермь, Москва, Санкт-Петербург, Новгород, Рязань, Тамбов, Тула, Ярославль | 140 |
| Волгоград, Курск, Смоленск | 120 |
| Псков, Астрахань | 110 |
| Белгород, Курск, Калининград | 100 |
| Ростов | 90 |
| Краснодар | 80 |
| Нальчик, Ставрополь | 60 |
Видео – Виды ленточных фундаментов
Теоретические аспекты самостоятельного обустройства ленточного фундамента
Прежде чем приступать к рассмотрению пошаговой технологии самостоятельной заливки фундамента под баню, вам рекомендуется подробно изучить теоретические аспекты, ключевые требования и сопутствующие замечания в отношении проведения каждого этапа предстоящей работы.
Разметка площадки
После определения подходящих параметров ленточного фундамента в соответствии с условиями конкретного строительного мероприятия (информация по этому поводу приводилась в таблице и на схемах существующих разновидностей опоры), приступают к разметке участка, предварительно очистив его от мусора и в целом всего, что может мешать выполнению дальнейших работ.
Помимо мусора, удаляется верхний шар грунта на глубину порядка 12-15 см. Разметка в целом выполняется традиционным способом: в углах будущей конструкции вбиваются деревянные или металлические колышки и между ними натягивается веревка. Последняя позволит проще
ориентироваться при определении направления фундаментной полосы.
Очень удобным вариантом является выполнение разметки с использованием обноски. Пример разметки с использованием подобных приспособлений показан на следующем изображении.

Разметка площадки
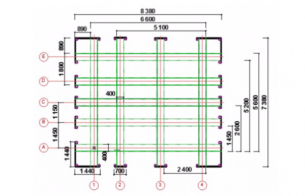
Разметка начинается с обозначения внешнего контура основания. В рассматриваемом примере размечается фундамент для бани размерами 5х6 м. По всем сторонам участок для обустройства основания должен быть минимум на 40-50 см шире непосредственно опорной конструкции.
Конкретно в данном примере размеры размечаемой площадки составили 6,6х7,6 м. Расчет ведется по теореме Пифагора, в соответствии с которой квадрат гипотенузы равен сумме квадратов катетов. Гипотенуза (АС) для этого примера рассчитывается следующим образом: √(5600²+6600²). В результате получается значение равное 8656 мм.
Проводим базовую линию, равную одной из сторон будущего основания. В рассматриваемом примере в качестве базового определен отрезок AD, равный 5600 мм. Чаще всего при выполнении данного мероприятия первой размечается самая важная сторона будущей постройки – ее делают параллельной некоторому направлению, к примеру, линии другого здания, ограждения и т.п. Для примера определим как важную линию АВ, обустраиваемую параллельно
по отношению к дому на отдалении 5 м от него. Угловую точку А отдаляем на 2 м от ограждения. Из т. А откладываем отрезок AD и вбиваем в его крайних точках колышки либо арматуру.
Для определения точки B нам понадобится пара веревок. На концах каждой веревки делаем петли. Набрасываем первую петлю на колышек/прут, обустроенный в месте расположения точки D. По длине используем такие веревки, чтобы после их натяжения между осями вбитых колышков были обеспечены значения равные упомянутым ранее 6600 мм и 8656 мм, в соответствии с приведенным выше чертежом.
После натяжения веревки чертим на земле дуги. Первой чертим дугу радиусом 6600 мм из т. А, вторую – 8656 мм из т. D. В месте пересечения начерченных дуг и находится т. B. Здесь и надо вбить второй колышек/прут.
Для определения точки С используем эту же технологию. Разница лишь в том, что из т. А проводится дуга по длине диагонали, из т. D – по стороне прямоугольника. Замеряем диагонали полученного прямоугольника. В идеале их длина должна быть одинаковой. Максимально допустимое отклонение – 1-1,5 см. Веревку для разметки натягиваем, отступив от грунта вверх порядка 20-25 см, последовательно обходя каждый брусок/стержень. При такой высоте натяжения шнура он не будет мешать монтажу обносок.
Для определения оставшихся внешних узловых точек попросту измеряем отрезки либо же используем вышерассмотренную технологию в соответствии с чертежом фундамента, ориентируясь по веревкам. Внутренний контур, а также узловые точки несущих стен размечаются после обустройства обноски.

Разметка
Приступаем к установке обноски. Она обеспечит временное обозначение осей за пределами траншеи и позволит контролировать нулевой уровень конструкции. Помимо этого, наличие обноски делает проведение всех подготовительных мероприятий более простым и удобным.
Монтаж обносок осуществляется по всему периметру вокруг опорной конструкции. Между каждой стороной периметра и устанавливаемыми обносками выдерживается расстояние порядка 1-1,5 м, чтобы не возникало неудобств в процессе выполнения земляных работ.
Находим наивысшую угловую точку нашей площадки, к примеру, А. Здесь будет установлена первая обноска. Берем три бруса (достаточно размерами 10х10 см) и вбиваем их в землю в соответствии с чертежом. Важно обеспечить максимально надежную фиксацию столбиков. С помощью карандаша или другого подходящего приспособления наносим на столбик метку нулевого уровня будущей бани. Чтобы это сделать, отступаем от земли 60 см вверх и наносим линию, обозначающую нулевой уровень.
Вооружившись шуруповертом и уровнем, фиксируем на вбитых столбиках пару досок размерами 4х15 см. Важно, чтобы верхние грани закрепленных досок строго совпадали с нанесенным ранее нулевым уровнем и располагались в единой горизонтальной плоскости. В аналогичном порядке монтируем столбики и доски в каждом углу и по протяженности периметра. Нулевой уровень переносим на каждый установленный столбик, ориентируясь на нулевой уровень самой первой обноски. В завершении убеждаемся, что верхние грани закрепленных досок располагаются в единой горизонтальной плоскости. Для этого используем уровень.
Приступаем к окончательной разметке. Сначала поочередно натягиваем веревки по наружному контуру. Чтобы это сделать, заводим веревку на верхние кромки противоположно расположенных обносок и натягиваем ее, ориентируя строго по веревке нижнего контура. После окончательного выравнивания, вбиваем в доски гвозди и качественно завязываем шнуры. По такой же схеме размечаем весь наружный контур. В результате верхний контур должен совпасть с нижним. Убеждаемся в равности наших диагоналей. При отсутствии отклонений, натягиваем оставшиеся веревки вдоль крайних кромок стенок возводящейся опорной конструкции. Отмечаем на обносках требуемую толщину стенок и ширину промежутков между ними, вбиваем гвозди, натягиваем и завязываем веревки.

Выполнение разметки внешних и внутренних стен здания

Выполнение разметки внешних и внутренних стен здания. Схема

Разметка осуществляется в таком порядке до обозначения всех углов
На этом же этапе можете разметить фундамент для банной печи. В соответствии с требованиями строительной технологии, между опорами печи и основной постройки не должно быть жесткой связи. Справившись с разметкой, приступайте к проведению земляных работ.
Рытье траншеи
В соответствии с разметкой роется траншея на предварительно определенную глубину – рекомендации по этому поводу приводились ранее.

Рытье траншеи

Вид вырытой траншеи
Требований и рекомендаций на этом этапе немного:
копать начинайте от нижнего угла опорной конструкции – так вы добьетесь одинаковой глубины котлована по всей его протяженности;
старайтесь, чтобы стенки траншеи были максимально вертикальными и ровными. В местах осыпания грунта установите временные подпорки;
регулярно проверяйте глубину котлована и показатели уклона его дна на отсутствие перепадов.
Выкопав котлован, приступайте к обустройству засыпки. Толщина песчаной подушки – от 15-20 см. Засыпка проливается водой и тщательно утрамбовывается. Благодаря этому элементу конструкции будет обеспечено правильное распределение нагрузок от будущего строения на опорную конструкцию. Вид засыпки в составе конструкции показан на следующем изображении.

Вид засыпки в составе конструкции
Важно! Засыпка делается в несколько слоев. Рекомендованная толщина каждого слоя – 5 см.
На готовую песчаную подушку укладывается слой рубероида. Материал обеспечит защиту засыпки от размывания и предотвратит просачивание бетонной смеси в песок во время заливки фундамента.

На фото — рубероид под армированием
Дополнительно рубероид возьмет на себя функции гидроизоляции нижней части опорной конструкции. Для большей эффективности, изоляционный материал следует завернуть на стены котлована примерно на 15-20 см.
Опалубка
Установка опалубки — один из важнейших этапов рассматриваемой работы.

Опалубка
Конструкция может быть разборной (демонтируется спустя 3-10 дней после заливки бетона) или несъемной (остается в составе фундамента, обеспечивая его дополнительное утепление).
Для изготовления разборной опалубки используются деревянные доски. Отдельные элементы скручиваются шурупами в щиты нужных размеров. Готовые щиты вертикально устанавливаются в траншею. От высоты выступа опалубки над поверхностью грунта напрямую зависит высота надземной цокольной части. Как правило, придерживаются показателя от 35-40 см.

На фото бота опалубки с перемычками и установленными подпорками
Скрепление отдельных щитов осуществляется по их поперечинам. С наружной стороны элементы подпираются кусками деревянного бруса. Обязательно контролируйте, чтобы верхняя часть опалубки находилась в единой горизонтальной плоскости, т.е. не было перепадов по высоте, иначе фундамент тоже получится неровным.
В готовую опалубку настилается плотная полиэтиленовая пленка, закрывающая конструкцию изнутри. Полиэтилен крепите к торцевым сторонам щитов опалубки.

В готовую опалубку настилается плотная полиэтиленовая пленка, закрывающая конструкцию изнутри
Для сборки несъемной опалубки используются пенополистирольные блоки. Элементы устанавливаются друг на друга. Скрепление отдельных блоков осуществляется посредством зубчатых вырезов и пазов. В продаже доступны блоки разных размеров, что позволяет подобрать их для любого фундамента.

Для сборки несъемной опалубки используются пенополистирольные блоки
Блоки не нуждаются в дополнительном скреплении. Распорки также не нужны.
Армирование
Армирование выполняется с использованием стальных прутьев диаметром 8-15 мм, в зависимости от предполагаемой нагрузки, которая будет создаваться будущей баней, размеров фундамента и ключевых характеристик грунта.
Арматура нарезается на пруты по длине стен и связывается в сетку при помощи специальной проволоки. Использовать для этого сварку настоятельно не рекомендуется – в процессе усадки конструкции армирующая сетка может разрушиться.

На фото связанный армирующий каркас
По желанию владельца, скрепление прутков может быть выполнено специальными пластиковыми клипсами (хомутами) – это более простой и быстрый вариант.

Клипсы для скрепления хомутов

Каркас, скрепленный клипсами
Заливка
Лучше, если бетон будет заливаться за один прием, однако в условиях самостоятельного строительства приготовить сразу требуемое количество смеси зачастую крайне проблематично.

Заливка бетона в опалубку
Ввиду этого бетон придется либо заказывать в готовом виде, либо искать другие варианты решения проблемы, заливая раствор послойно. Стандартная схема следующая: в первый день заливается горизонтальный слой 15-20-сантиметровой толщины и тщательно утрамбовывается при помощи деревянного бруса. Важно, чтобы толщина слоя по всей протяженности опалубки была одинаковой, а верх заливки – ровным. На следующий день работа выполняется по такой же схеме. Процесс повторятся до полного заполнения опалубки бетоном.
Залитая конструкция накрывается полиэтиленовой пленкой – это предотвратит ее слишком быстрое высыхание и растрескивание. Периодически полиэтиленовая пленка снимается, бетон проливается водой из шланга, после чего снова накрывается изоляционным материалом. Основание будет сохнуть 4-5 недель. Опалубка демонтируется в среднем на 5-7 день после заливки, иногда – спустя 10 суток. В завершение готовая конструкция подвергается гидроизоляции. Этот момент будет подробнее рассмотрен далее.
Дополнительные полезные советы
Чтобы готовый фундамент был максимально качественным, выполняйте работу по его обустройству с соблюдением ключевых строительных рекомендаций.
Во-первых, в случае самостоятельного приготовления раствора, используйте для этого очищенные от глины, грунта и прочих примесей материалы.
Во-вторых, правильно подберите пропорции раствора конкретно для вашего случая. В целом щебня/гравия всегда берется приблизительно в 1,5-2 раза больше, чем мелкого заполнителя, т.е. песка. Подробная информация в отношении возможных составов бетона будет приведена в практической части.
В-третьих, добавляйте в раствор оптимальное количество воды – порядка половины от веса цемента. Дополнительно учитывайте влажность сырьевых материалов. К примеру, если вы вынуждены использовать мокрый песок, необходимое количество воды соответствующим образом уменьшится.
В-четвертых, не забудьте обработать заливку для удаления из нее лишнего воздуха – актуально для густых растворов. Достаточно проткнуть заливку металлическим стержнем по всей протяженности.
В-пятых, после заливки бетона опалубку нужно простучать деревянным молотком – это также удалит лишний воздух.
Практические аспекты, или пошаговая инструкция по заливке фундамента
Для примера рассмотрим порядок обустройства незаглубленного ленточного фундамента – один из наиболее популярных вариантов, прекрасно подходящий для конструкций сравнительно небольшой площади. К примеру, ваша деревянная баня размером 4х4 или 6х6 (иногда можно даже больше) будет вполне комфортно себя чувствовать на таком основании. При необходимости можете менять глубину залегания ленты и другие ее параметры в соответствии с типом грунта и особенностями возводящейся постройки – непосредственно порядок действий останется аналогичным.
Порядок проведения рассматриваемого мероприятия приведен в следующей таблице.
Таблица 2. Порядок обустройства незаглубленного фундамента
| Этап работы | Иллюстрация и дополнительные пояснения |
|---|---|
| Очищаем площадку для будущего фундамента от мусора. |
Очищаем площадку |
| Утилизируем собранный мусор. К примеру, его можно вывезти на свалку или попросту сжечь. |
Утилизируем мусор |
| Приступаем к подготовке разметки для траншеи |
Делаем разметку Разметка выполняется стандартным способом: по периметру будущей конструкции натягивается шнур, в углах вбиваются колышки
Колышки При помощи гидроуровня наносим на колышки точки горизонтальной плоскости. |
| Копаем траншею в соответствии с разметкой. Минимально допустимая глубина – 60 см. |
Траншея Дно готовой траншеи застилаем геотекстилем, рубероидом либо полиэтиленовой пленкой для гидроизоляции. |
| Выполняем засыпку | Для этого используем песчано-гравийную смесь. Рекомендованная толщина слоя – 15-20 см. Засыпку тщательно проливаем водой и хорошенько утрамбовываем
Выполняем засыпку Утрамбовать можно вручную. Верх готовой засыпки выравниваем по горизонтали. |
| Подготавливаем щиты для опалубки |
Подготавливаем щиты для опалубки
Ширина каждого должна соответствовать высоте обустраиваемого фундамента. |
| Собираем опалубку |
Собираем опалубку Начинаем с внутренней стороны. Чтобы в будущем опалубку было легче разобрать, для соединения элементов используем шурупы. |
| Приступаем к армированию |
Приступаем к армированию
Благодаря армированию будут обеспечены необходимые показатели жесткости готового фундамента. Прутки арматуры соединяются с помощью вязальной проволоки. Крючок для вязки при желании можно согнуть из старой Как вязать арматуру для фундамента
Размеры ячеек обычно выдерживаются на уровне 10х10 либо 15х15 см. На стыках монтируется дополнительная усиливающая арматура |
| Устанавливаем наружную опалубку |
Устанавливаем наружную опалубку |
| Заливаем бетон | Для этого используем готовый состав марки от М200 либо же готовим раствор самостоятельно (пропорци и указаны в таблице ниже). Заполняем пространство в опалубке равномерным горизонтальным слоем бетона и тщательно его утрамбовываем, можно вручную.
Заливка ленточного фундамента
На изображении вы видите, что стенки фундамента находятся на разном уровне – этот вариант очень удобен в случае возведения бани из бревна. Такая особенность позволит максимально качественно уложить в дальнейшем первый венец. Величину перепада подбирайте в соответствии с размерами используемых бревен. При возведении фундамента из других материалов, такой перепад можете не делать – смысла в этом нет. Технология выполнения работы остается аналогичной. Залитый фундамент |
| Чтобы весь цемент вступил в реакцию и застывший бетон был максимально прочным, периодически проливаем заливку водой, а после накрываем ее полиэтиленом либо рубероидом |
Рубероид |
| Опалубку обычно демонтируют на 5-7 сутки после заливки, но в зависимости от состояния бетона, этот срок может увеличиться до 10 дней. К дальнейшим строительным работам можно приступать минимум через месяц после заливки фундамента. |
Фундамент |
Таблица 3. Пропорции бетона
| Марка цемента | Бетон М300 (В 22,5) | Бетон М250 (В20) | М200 (В15) | М150 (В10) | М100 (В7,5) |
|---|---|---|---|---|---|
| 400 | 1:1,6:3,4 | 1:1,8:3,6 | 1:2,4:4,4 | 1:3:5,3 | 1:4:6,5 |
| 500 | 1:1,8:3,9 | 1:2:4 | 1:2,6:5 | 1:3,5:6 | 1:4,5:7,3 |
Видео – Как правильно залить фундамент под баню
Полностью застывший и набравший прочность фундамент подлежит обязательной гидроизоляции. Чаще всего для этого используется рубероид. Материал укладывается на предварительно очищенную от мусора и, по желанию владельца, покрытую акриловой грунтовкой верхнюю часть фундамента. После очистки и грунтования (если запланировано) верх фундамента покрывается мастикой.

Мастика для гидроизоляции фундамента
Сверху укладывается, прижимается и одновременно разглаживается первый слой рубероида.

Гидроизоляция фундамента рубероидом
Далее выполняются уже знакомые действия: поверх первого слоя наносится битумная мастика и укладывается второй слой рубероида. Гидроизоляция готова!



