Как сделать бак для воды из нержавейки для бани
Установка бака для воды в бане открывает перед владельцем ряд удобств и преимуществ. Во-первых, появляется возможность приготовления горячей воды в процессе топки печи, что позволяет экономить энергоресурсы и расходовать их максимально целесообразно. Во-вторых, применение подобного агрегата в большинстве случаев дает возможность отказаться от установки электрического водонагревателя, что также идет на пользу бюджету, выделенному на обустройство бани.

Как сделать бак для воды из нержавейки для бани
К бакам для воды предъявляется несколько основных требований: они должны быть вместительными, долговечными, прогреваться за максимально короткое время и удерживать тепло так долго, как то диктуют потребности посетителей парилки. Среди доступных рядовому пользователю вариантов, в наибольшей степени перечисленным критериям соответствуют изделия, выполненные из нержавеющей стали.

Печь с баком на трубе

Банная печь Варвара классик с навесным баком для воды
Далее вам предлагается ознакомиться с ключевыми особенностями баков для воды, изготовленных из нержавейки, а также изучить руководства по самостоятельной сборке и монтажу таких конструкций.

Схема — пример установки выносного бака для воды
Почему именно нержавейка: ключевые преимущества материала
Современный рынок предлагает широкий ассортимент водяных баков, изготавливаемых из чугуна, нержавеющей стали и эмалированного материала. Как показывает практика, наибольшей популярностью среди владельцев бань пользуется именно нержавейка, что обусловлено грамотным и приемлемым соотношением эксплуатационно-технических характеристик и показателей стоимости.
Нержавейка характеризуется превосходными показателями теплопроводности, нормально переносит температурные скачки и служит объективно дольше различных черных металлов.

Примеры баков из нержавейки

Наставной бак для печи из нержавеющей стали

Бак из нержавеющей стали

Емкости из нержавейки
Здесь возникает закономерный вопрос: какая из существующих марок нержавейки лучше подходит для изготовления рассматриваемой емкости, предназначенной для эксплуатации в условиях бани? Во-первых, это марка 08Х17 (430), во-вторых, 8-12Х18Н10 (304). Упомянутые материалы, помимо всего прочего, применяются для производства посуды и характеризуются высокой стойкостью к воздействию высоких температур, являются полностью гигиеничными, не ржавеют и не деформируются во время использования. Помимо этого, такие материалы являются неприхотливыми и предельно простыми в уходе.

Состав и механические свойства разных марок нержавеющей стали
Подытожив вышесказанное, можно выделить 3 главных преимущества водяных баков, изготовленных из нержавеющей стали:
Варианты конструкции водяных баков для бани
Баки для воды, рассчитанные на использование в бане, могут иметь различную конструкцию. Основных варианта 3: встроенный бак, выносная емкость и агрегат, устанавливаемый на трубе. С особенностями каждого типа конструкции вы можете ознакомиться в следующей таблице.
Таблица. Конструкции водяных баков из нержавейки
| Тип конструкции | Описание |
|---|---|
Встраиваемый водяной бак |
Установка представителей этой категории осуществляется в процессе строительства банной печи, в результате чего печка и бак становятся единой конструкцией. Нагрев воды во встраиваемом баке из нержавейки осуществляется силами огня, благодаря чему коэффициент полезного действия непосредственно водяного бака держится на довольно внушительном уровне. Ключевым недостатком такой конструкции является тот факт, что на подогрев воды в емкости уходит существенная часть тепла, в результате чего теплоотдача непосредственно банной печи заметно падает. Полезное замечание! Гораздо более простым в изготовлении и использовании является наставной/навесной бак, устанавливаемый сверху каменки. |
Выносной водяной бак |
Более удобный и практичный по сравнению с предыдущей моделью вариант, в особенности, если бак конструируется и устанавливается с целью постоянного использования. При желании готовый бак для воды из нержавейки можно установить в помывочном помещении бани, соединив его системой труб с печным теплообменником. Оптимальный материал изготовления труб – медь либо латунь. Единственный значимый недостаток выносного водяного бака сводится к вероятности получения ожога в случае неосторожного обращения – положение в особенности актуально, если в баню будут ходить дети. |
Натрубный водяной бак |
Натрубный бак для воды может быть установлен либо непосредственно над банной печью, либо в пространстве чердачного помещения. В таких конструкциях вода нагревается в кратчайшие сроки. При этом показатели теплоотдачи печного агрегата не уменьшаются. Несомненным преимуществом установки водяного бака в чердачном помещении является возможность «разгрузить» парилку, исключив емкость из ее обстановки и обеспечив большее количество свободного пространства. |
В таблицу не включен еще один возможный вариант установки бака – сбоку печки.

Печь с боковым баком

Печь с боковым баком — фото
Способ обделен вниманием по той простой причине, что является наихудшим. Вода в таком баке будет очень быстро закипать. Если процесс парения затянется, из-за постоянно кипящей воды атмосфера в помещении парилки станет попросту невыносимой. Да и с обслуживанием подобного бака сплошные неудобства: в целях экономии пространства емкость делается высокой, но очень узкой.
Рекомендации по выбору объема водяного бака
Разобравшись с особенностями водяных баков из нержавейки и выбрав наиболее приемлемый вариант конструкции, остается лишь определить оптимальный объем емкости, после чего можно переходить непосредственно к этапу ее изготовления.
При выборе требуемого объема водяного бака из нержавейки, нужно, прежде всего, ориентироваться на запланированное количество посетителей, которые будут одновременно ходить в баню. К примеру, если парилка не способна ввиду своих физических габаритов вместить более 2-3 человек, можете смело ставить бак на 50-80 л, из расчета 25-30 л воды на каждого банщика.

Баки бывают разных размеров — выбирайте подходящий
Оперируя вышеприведенной рекомендацией, вы сможете рассчитать требуемый объем бака для воды с учетом посещаемости обустраиваемой бани. Для большего удобства рекомендуется добавить сверху расчетного значения хотя бы 10-20 л – потребности и представления о комфортном мытье у каждого человека разные.

Одна из возможных схем подключения бака для воды
Изготовление бака для воды из нержавейки своими руками
Большинство фабричных моделей водяных баков изготавливается из нержавейки толщиной 1 мм. Для самостоятельного изготовления рекомендуется использовать более толстые листы – порядка 1,2-1,8 мм (конкретный показатель подбирается в соответствии с объемом емкости). Расходы на изготовление конструкции в данном случае будут более высокими, зато вам долгие годы не придется задумываться о необходимости ремонта, покраски, покрытия различными специальными составами и прочего подобного обслуживания бака.
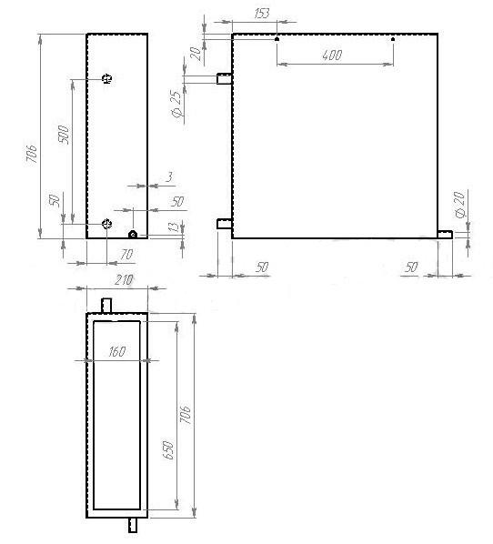
В качестве примера можете использовать следующий чертеж – это наиболее простой для самостоятельной сборки и один из самых популярных вариантов конструкции.

Чертеж простого бака для воды
Размеры можете пропорционально менять в соответствии с требуемым объемом емкости. Расчет объема выполняется по стандартной формуле, т.е. показатели длины, ширины и высоты изделия последовательно перемножаются. К примеру, объем емкости, представленной в качестве примера, составит порядка 25 л.
Полезный совет! Еще более простой вариант водяного бака – изделие, изготовленное из отрезка бесшовной нержавеющей трубы. Отдавая преимущество такому решению, вы получаете ряд преимуществ. Во-первых, не придется тратить время и силы на раскрой листового металла, просчитывая припуски, запасы и прочие моменты, т.е. вероятность возникновения ошибок снижается к минимуму. Во-вторых, изготовление водяного бака для воды из трубы требует использования сварки в минимальном количестве.
В продаже доступны трубы из нержавейки диаметром до 1020 мм и даже более, что позволяет безо всяких проблем приобрести изделие для изготовления емкости требуемого объема. Чтобы определить объем цилиндра (а именно такую форму по итогу будет иметь накопительный бак), используйте следующую формулу.

Формула для определения объема цилиндрического бака
Полезное замечание! При желании никто не запретит вам сделать бак из профилированной нержавеющей трубы, и тогда емкость будет иметь прямоугольную форму.
Дальнейший порядок самостоятельного изготовления бака для воды будет рассмотрен именно на примере использования отрезка трубы в качестве заготовки.

Труба — заготовка
Важно! Если запланирована установка натрубного водяного бака, для его изготовления лучше использовать более короткую, но широкую заготовку, чтобы дымоотводящую трубу можно было пропустить через внутреннюю полость емкости. Выглядеть это будет примерно следующим образом.

Баки для установки на трубу

Бак самоварного типа
Порядок изготовления водяного бака из трубы представлен в следующей таблице.
Таблица. Изготовление водяного бака для бани
| Этап работы | Описание |
|---|---|
Отрезаем кусок трубы |
Ранее приводилась формула для расчета объема цилиндра. С ее помощью мы находим требуемую высоту водяного бака. К примеру, мы хотим получить бак объемом 30 литров и используем для его изготовления трубу диаметром 1020 мм. Путем нехитрых арифметических манипуляций на уровне 5 класса, преобразовываем формулу в следующий вид: H=30/(3,14*0,512)=37 см – именно такую длину должен иметь отрез трубы для получения водяного бака указанного объема. Чтобы отрезать кусок трубы, используем болгарку. Для работы с нержавейкой подходят диски толщиной 1 мм и диаметром 11,5 либо 12,5 см. |
Обрабатываем участки распила |
Чтобы готовый бак для воды имел красивый вид, нужно соответствующим образом обработать зоны распила. В будущем аналогичные действия будут выполнены при растачивании отверстий для подключения патрубков с кранами. Наиболее удобным инструментом, позволяющим быстро и эффективно справляться с решением упомянутых задач, является ручная бормашина. Подобные приспособления комплектуются множеством разнообразных абразивных насадок, позволяющих добиваться максимального качества обработки конкретного материала. При отсутствии ручной бормашины швы придется приводить в порядок подручными средствами: напильником, наждачной бумагой и т.п., что определенно является более длительным и трудоемким мероприятием. |
Делаем дно и крышку бака |
На этом этапе нам понадобится лист нержавеющей стали. Крышку и в особенности дно рекомендуется делать из материала, имеющего более внушительную толщину по сравнению со стенками трубы, выбранной для изготовления корпуса. Работа выполняется в несколько этапов: – на листе нержавейки чертится круг по диаметру отверстий, которые он будет закрывать. Можете просто поставить трубу на лист металла и начертить круг, обведя изделие по контуру; – в соответствии с разметкой вырезается 2 заготовки. Для резки и последующей шлифовки краев можно использовать уже упомянутые ранее болгарку и ручную бормашину. Если предполагается натрубный метод установки водяного бака, на этом же этапе в днище и крышке можно подготовить отверстия по диаметру дымоотводящей трубы (лучше на 1 мм больше, чтобы дымоход мог через них пройти, в будущем зазор будет нивелирован при помощи сварки). Также на этой стадии можно подготовить отверстия для дальнейшего подключения патрубков с кранами, если они будут монтироваться в днище (актуально для выносных конструкций, устанавливаемых в стороне от печи, в случае с надтопочными/встроенными и натрубными баками патрубки целесообразнее врезать в стенку корпуса бака). Более подробно нюансы сверления и сварки нержавейки будут рассмотрены в соответствующих разделах инструкции. |
Соединяем днище и крышку с корпусом бака |
На фото продемонстрирована профилированная труба, но процесс сварки для этого случая и работы с круглой заготовкой остается одинаковым. Изделия из рассматриваемого материала можно соединять разными способами: – при помощи пайки с использованием безсвинцовых или высокотемпературных припоев; – ручной либо автоматической сваркой (в случае с нержавейкой работа осуществляется исключительно в среде защитных газов). Наиболее предпочтительным является второй вариант, самой простой в освоении – ручная дуговая сварка. В качестве защитного газа используется аргон. Сварка осуществляется с применением не плавящегося электрода для работы с нержавейкой. В международной классификации аппараты, предназначенные для такой сварки, маркируются аббревиатурой TIG. Покупая или арендуя сварочный аппарат, не забудьте приобрести/арендовать баллон с аргоном и редуктор. Функция последнего сводится к уменьшению давления защитного газа на выходе. Швы должны быть максимально аккуратными и однородными. После выполнения их рекомендуется зачистить. Рекомендации в отношении подходящего для этого инструмента приводились ранее. Полезный совет! При желании крышку бака можно не приваривать, а присоединить с помощью болтов и ушек либо попросту сделать ее съемной. Вариант актуален для случаев, когда вода будет добавляться пользователем вручную, а не поставляться посредством водопровода. Емкость готова. Приступаем к подготовке отверстий для дальнейшей врезки патрубков. |
Подготавливаем отверстия |
Рассматриваемые конструкции укомплектовываются двумя патрубками с кранами. Через верхний патрубок в емкость традиционно подается холодная вода, а через нижний подогретая жидкость уходит потребителю. Диаметры сантехнических патрубков соответствуют диаметрам водопроводных труб, применяющихся в комплексе с ними. Чаще всего используются трубы диаметром ½ либо 1 дюйм. Для сверления нержавейки подойдет обыкновенная электрическая дрель. Главное, чтобы работа выполнялась на низких оборотах – не более 100 об/мин. В дрели с электронным регулятором установка требуемого режима не является проблемой. Если же такого регулятора нет, надо попросту активировать кнопку пуска короткими нажатиями – в течение секунды инструмент не успеет разогнаться до рабочей мощности. Отверстия лучше всего делать сверлом марки Р18. Еще более удобный вариант – специальное ступенчатое сверло (показано на изображении). Такой инструмент не задирает края отверстия, благодаря чему оно получает идеально круглую форму. Наряду с этим, для сверления отверстий диаметром более 14 мм удобнее использовать специальные насадки – т.н. «коронки». |
Коронки для сверления |
Представленные диаметры таких коронок соответствуют как дюймовой, так и метрической градации сантехнических труб. С помощью соответствующих коронок вы также сможете подготовить отверстия в днище и крышке бака, если предполагается его натрубная установка. |
Монтаж патрубков с кранами |
В продаже доступны патрубки с кранами для перекрытия потока воды. В комплексе с баком из нержавейки предпочтительнее применять комплектующие, выполненные из этого же материала. Чтобы не тратить лишнее время на обустройство резьбы, патрубки попросту привариваются к подготовленным ранее отверстиям. Рекомендации в отношении инструментов и режимов сварки остаются теми же. После установки водяного бака в соответствии с выбранной схемой (будут рассмотрены далее), к патрубкам подключаются водопроводные трубы (ранее отмечалось, что лучше всего использовать изделия из меди либо латуни) подходящего диаметра. Соединение патрубка с трубой выполняется любым подходящим способом, например, с помощью резьбового переходника. |
Итак, емкость для воды готова, и даже патрубки для врезки труб уже смонтированы. Остается лишь подключить готовое устройство для его последующего использования по назначению.
Порядок подключения бака для воды из нержавейки
Важные замечания перед началом работы
Ранее отмечалось, что наиболее часто встречаются следующие варианты монтажа бака: внутри печи, в стороне от нее и на дымоходной трубе. Первый вариант предлагаем заменить способом, при котором монтаж бака осуществляется над печной каменкой. Данный метод более прост в реализации, при этом, к его использованию можно прибегнуть, даже если печь уже построена – вдруг вы сначала думали, что подобный нагреватель вам не понадобится, а после изучения изложенного материала уяснили все преимущества его использования и захотели установить в своей бане.
Важно! Реализовать упомянутую замену удастся только в случае с разборным дымоходом. Предлагаемый способ предполагает совмещенную установку бака – он будет одновременно размещаться над камнями и вокруг дымоходной трубы, что сделает эффективность нагревания воды максимально высокой. В противном случае придется либо отдавать предпочтение встроенной модели бака (если печь только строится), либо устанавливать агрегат на отдалении от печки.
Если печь кирпичная, подготовка места для бака и его непосредственная установка выполняются в процессе кладки (конкретный этап зависит от выбранной конструкции печи и размеров топки, чаще всего это 10 ряд). При кладке ряда оставляют проем для размещения бака. Размер проема должен на несколько миллиметров превышать габариты устанавливаемой конструкции для компенсации температурных расширений.

На схеме — проем для установки бака
Примечание! В промежутки между отмеченными четвертинками кирпича укладываются трубы, наличие которых будет способствовать повышению эффективности обогрева – таковы конструкционные особенности конкретно этого печного агрегата, в выбранном вами проекте данные трубы могут отсутствовать.
Печь с установленным баком выглядит так.

Печь с установленным баком
Снизу в стенку бака врезан сантехнический кран. Предполагается, что пользователь будет набирать горячую воду прямо в парилке. При желании конструкцию можно усовершенствовать, врезав вместо крана упомянутый ранее патрубок, подсоединив к нему водопроводную трубу и выведя ее в помывочную.
Когда кладка будет доведена до верхней грани бака, на него укладываются 2 металлические полоски, наличие которых позволит безопасно перекрыть накопительную емкость кирпичом.

Схема перекрытия бака
Далее собственно перекрывается бак и последующая кладка осуществляется в соответствии с конкретно выбранным проектом печи.

Перекрытие и дальнейшее строительство печи
В случае с металлическими банными печами, бак для воды приваривается над топкой (рекомендации в отношении сварки приводились ранее). В результате нагрев емкости осуществляется силами пламени, что обеспечивает максимально быстрое приготовление воды. Выглядит конструкция приблизительно так.

Пример банной печи с баком для воды
Важно! Если предпочтение отдается встраиваемой конструкции бака, для его изготовления следует использовать металл толщиной более 1 мм и, при этом, следить, чтобы качество сварных швов было максимально высоким. В противном случае бак либо быстро прогорит, либо даст течь через некачественные швы.
Полезный совет! В случае с кирпичной печью, можно пойти более простым путем, уложив водяной бак на корпус печи над топкой. Конструкция выглядит примерно так.

Водяной бак над топкой
Установка бака для воды над каменкой
Данный метод, как отмечалось, предполагает совмещение вариантов установки бака над каменкой и на дымоотводящей трубе. Расстояние между каменкой и дном бака обычно выдерживается в промежутке 20-35 см с возможностью изменения в обе стороны: чем меньше этот показатель, тем быстрее нагреется вода, но бак прослужит меньше, и наоборот.
Приводить подробную пошаговую инструкцию не имеет смысла – всеми необходимыми знаниями вы уже владеете. Ранее рассказывалось, как подготовить отверстия в днище и крышке бака для пропуска через них дымоотводящей трубы. Сделайте это.
Далее вам нужно провести элемент дымоотводящей системы через внутреннюю полость емкости и соединить трубу с баком в местах входа и выхода (в днище и крышке) при помощи сварки. Как это делать вы тоже знаете.
Водяные баки из нержавейки имеют сравнительно небольшой вес (к примеру, чугун гораздо более тяжелый и бак из него потребовал бы фиксации к потолку при помощи цепей или другим подходящим способом) и дополнительного крепления не требуют. Дальнейшая установка дымохода выполняется по стандартной схеме, в зависимости от выбранного типа конструкции.
В идеале готовая система будет иметь следующий вид.

Пример установки бака

Прямоугольный бак самоварного типа
На представленном в качестве примера изображении не видны патрубки и краны. Следующая конструкция не так красива внешне, зато подключение вывода воды здесь наглядно продемонстрировано.

На фото виден кран и патрубок для подачи воды
Что касается подачи холодной воды, она может быть организована несколькими способами, в зависимости от особенностей конкретной ситуации:
Рассматривать в подробностях каждый из перечисленных вариантов мы не станем, т.к. это темы для отдельных объемных инструкций.
Установка выносного водяного бака
Обустройство такой системы также не отличается чрезмерной сложностью. Единственное, схема дополняется новым устройством – теплообменником. Он может быть встроенным либо внешним. Для самостоятельного изготовления лучше выбрать второй вариант – он более удобен и прост в реализации.
Схема системы с выносным водяным баком представлена на следующем изображении.

Схема системы с выносным водяным баком
Здесь мы видим, что внешний теплообменник установлен на дымоходной трубе. Вода в теплообменнике греется за счет тепла дымовых газов, передаваемого через стенки трубы. Если под теплообменником расположена открытая каменка, дополнительно нагрев будет осуществляться силами тепла раскаленных камней.
Подогреваясь в теплообменнике, вода уходит во внешний бак, оттуда, остывая, обратно в теплообменник. Циркуляция воды будет обеспечиваться посредством созданных уклонов и разности давлений в емкости с горячей и остывшей жидкостью.

Выносной бак

Выносной бак с горячей водой на 60 л
Теплообменник вы сможете сделать самостоятельно. По сути это тот же бак для воды, инструкцию по изготовлению которого вы уже изучили, только меньшего объема (обычно до 5 литров). Установка теплообменника выполняется так, как и бака в предыдущей инструкции (на дымоотводящей трубе).

Теплообменник трубный

Регистр — теплообменник для банных печей

Установка встроенного теплообменника в банной печи
Как делать необходимые отверстия, устанавливать патрубки, краны и трубы вы уже тоже знаете. Где это делать – смотрите на схеме. Остается лишь подготовить все требуемые элементы и собрать их в единую систему, выдерживая необходимые расстояния и уклоны в соответствии с вышеприведенной схемой.
В данном примере выносной бак для вод установлен в помывочном помещении и укомплектован стандартным сантехническим краном для слива воды. Трубы, как и упомянутый кран, врезаны в дно емкости. Отверстия для прокладки труб через перегородку можете выполнить с помощью подходящего инструмента, например, перфоратора.
В соответствии с актуальными положениями действующих стандартов, трубопроводы холодного и горячего водоснабжения в случае их прокладки через перегородку должны быть уложены через гильзу. Диаметр последней подбирается так, чтобы на 0,5-1 см превышать внешний диаметр монтируемой трубы. Для заделки зазора между гильзой и трубой используется несгораемый мягкий материал, чтобы по итогу обеспечивалась возможность перемещения трубы по продольной оси в случае температурных расширений. Схематически это показано на следующем изображении.

Проход подводки воды через перекрытие
Зазоры в перегородке можно замаскировать любым подходящим способом, к примеру, заполнив упомянутым мягким несгораемым материалом и закрыв элементом наружной отделки (вагонкой и др.).
Остается лишь разобраться, как закрепить водяной бак на стене. Самый простой вариант – установка на металлические уголки, мощности которых было бы достаточно, чтобы выдержать вес бака с водой.
Крепление осуществляется следующим образом. Приложив уголки к стене, вы ставите на поверхности метки, просверливаете по меткам отверстия и монтируете в них дюбеля. Далее прикручиваете уголки к стене при помощи болтов длиной 8-10 см и диаметром 1-1,2 см.

Крепление для бака
На уголки сможете установить ваш водяной бак. Способ является предельно простым в реализации, но не самым надежным (ошиблись при выборе уголков – они прогнулись – бак упал), да и подходит он объективно только для прямоугольных конструкций небольшого объема. Более надежным является метод крепления, использующийся при установке бытовых водонагревателей. Для его реализации вам придется снова поработать со сварочным аппаратом. Всеми необходимыми знаниями вы уже владеете, поэтому дополнительных пояснений давать не требуется. Порядок действий следующий:
Дальнейшие действия аналогичны предыдущей инструкции, с тем лишь отличием, что водяной бак не устанавливается на уголки, а крепится к стене через них посредством приваренной планки. Выглядит это следующим образом.

Крепление бака через планку
Бак установлен. Можно тестировать и, если все нормально (нет течей, чрезмерного нагрева и прочих неблагоприятных явлений) принимать конструкцию в постоянную эксплуатацию.
При желании систему можно совершенствовать практически до бесконечности, укомплектовывая разнообразной автоматикой, средствами измерения и т.д. Не исключается и возможность монтажа дополнительной разводки с целью подключения бака к душевой кабине в помывочной – это позволит мыться с максимальным комфортом. Пример реализации такой задумки представлен на следующем изображении.

Схема подключения выносного бака и душевой кабины к банной печи
Полезный совет! Установку бака выполняйте таким образом, чтобы он был минимально отдален как от банной печи, так и от места забора горячей воды.
В достаточной мере овладев искусством сварки нержавейки, при желании вы сможете изготовить бак не из трубы, а из листового материала – это более ответственная по сравнению с рассмотренным вариантом работа. Пример ее выполнения детально освещен в приложенном видео.
Удачной работы!