Оптимальные размеры бани
Первый этап подготовки к строительству бани или сауны – создание проекта, который содержит в себе габариты всей постройки в целом и каждого помещения в отдельности, высоту потолков, линии прокладки коммуникаций и т.п. Очень важно, чтобы пользоваться возведенной баней было не только приятно, но и удобно. Для этого необходимо определить оптимальные размеры бани, количество и назначение помещений.

Оптимальные размеры бани
Стоит заметить, что универсальных размеров бани просто не существует. Каждый подбирает габариты в соответствии со своими потребностями, ростом, учитывает количество возможных посетителей, планирует частоту посещений. Если кому-то достаточно бани-малютки на даче, то есть и те владельцы, которые сразу замахиваются на строительство капитального многоэтажного банного комплекса, где приятно провести несколько часов кряду в приятной компании.

Баня-малютка

Большая баня с беседкой
По своим размерам будут отличаться бани круглогодичного пользования и сезонные постройки. Если в первом случае необходимо производить утепление стен, пола, потолка, монтаж системы отопления, то для бань, которые эксплуатируются только летом, подобные меры излишни.

Баня для круглогодичного посещения капитальная

Летняя баня
Помещения в бане. Их назначение и взаимозаменяемость
Главное помещение, без которого нельзя представить баню, – парная. Здесь непременно должна быть установлена печь (металлическая или кирпичная) и полоки.

Парилка для большой компании

Просторная парилка в бане
Моечная или душевая. Если в бане проложены коммуникации (водоснабжение и канализация), то имеет смысл устанавливать душевой уголок или кабинку, обливное ведро, здесь же можно расположить купель. Если же горячая вода нагревается в баке, а холодную нужно приносить ведрами, то в душевой ставят несколько корыт, тазов, ушата и другие емкости, в которых удобно смешивать теплую воду. Душевую лейку при таком варианте заменяет обычный ковш.

Моечная в бане

Обливное ведро и купель в моечной
Для экономии пространства моечную обустраивают прямо в парной, не разделяя эти помещения перегородками и дверью. Обычно такой вариант приемлем для небольших загородных сезонных бань. Впрочем, с точки зрения гигиены – мыться в парилке не стоит (нагретое мыло может причинить вред здоровью).

Планы бань с совмещением парильни и моечной
Санузел. Мнения о необходимости уборной в бане неоднозначны, стоит оперировать количеством свободного пространства в бане и возможностью прокладки коммуникаций. Альтернатива классическому унитазу – биотуалет торфяной или жидкостный. Обычно уборную располагают в помещении моечной, устанавливая перегородку с дверью, ширмой или шторкой. В двухэтажной бане имеет смысл устанавливать клозеты на каждом этаже, а в идеале — дополнять уборные компактным угловым умывальником.

Организация туалета в бане

Биотуалет в бане

Туалет с умывальником. Здесь же разместили насосное оборудование и бойлер
Предбанник, он же гардеробная и комната отдыха. Без этого помещения обойтись нельзя. Здесь обычно переодеваются, складируют дрова, пьют чай. Чем больше свободного пространства, тем комфортнее можно обустроить комнату, добавив камин, бильярдный стол, мягкий уголок, ТВ и т.д. Но в таком случае лучше разделить предбанник, гардеробную и непосредственно комнату отдыха. А в предбаннике самой скромной по размерам бани обязательно должна вмещаться лавка или диван, вешалка, полки для обуви, столик (возможно складной). В любом случае проект составляют таким образом, чтобы из предбанника можно было попасть в уборную, душевую, парилку. Может быть два разных входа в моечную и парилку из предбанника или путь к самому жаркому помещению бани будет лежать сквозь душевую.

На фото — маленький предбанник

Комната отдыха

Предбанник в русской бане
Баню, которая будет эксплуатироваться в холодное время года, рекомендуется дополнить тамбуром для предотвращения утечки тепла из бани и появления сквозняков.

Вид со стороны фронтона на баню 3х6 м с тамбуром
Дополнительные помещения: бассейн, тренажерный зал, терраса, спальня на втором этаже, фитобар, комната для массажа, бойлерная, прачечная (комнатка со стиральной машиной и шкафом для чистого белья), чердак, где сушатся веники.

Проект бани с бассейном

Проект бани

Баня 6х6 м с мансардой, проект
Сопоставление размеров бани и пиломатериала
Кладка из кирпича, пено-, газоблоков хороша тем, что постройка может быть абсолютно любой формы и размеров. В любом случае количество стесанных кирпичей (блоков) ничтожно мало.
Другое дело – бани из бруса, бревна, лафета. Чтобы сократить количество неиспользуемой обрези, стоит выбирать габариты бани в соответствии с длиной пиломатериала. Самая востребованная длина бруса и бревна составляет 3, 4 и 6 метров.

Брус обрезной профилированный, размеры
Таблица. Длина пиломатериала
| ГОСТ, № | Вид древесины | Минимальная и максимальная длина, м | Градация (шаг), м |
|---|---|---|---|
| 2695-83 | Твердые лиственные породы | 0,5 – 6,5 | 0,10 |
| 2695-83 | Мягкие лиственные породы | 0,5 – 2,0 | 0,5 – 2,0 |
| 2695-83 | 2695-83 | 2,0 – 6,5 | 0,25 |
| 24454-80 | Хвойные породы | 1,0 – 6,5 | 0,25 |
На заметку! Допускаются отклонения от номинальной длины от -25 до +50 мм (технические требования по ГОСТ 8486-86).
Кроме того, у лесозаготовительных компаний иногда в продаже бывает брус и бревно длиной 9 и даже 12 метров.

Брус клеённый профилированный длиной до 12 метров
Стандартные угловые соединения для бруса и бревна составляют:

Угловое соединение
Обратите внимание на эти показатели, рассчитывая площадь бани с эркером, а также количество расходуемого пиломатериала.

Эркер из бруса

Баня с эркером
От чего зависят размеры бани
Первое, от чего зависит размер бани – является ли она отдельно стоящей или служит пристройкой к дому. Во втором случае одна из стен дома превратится в перегородку между баней и основной постройкой.

Один из вариантов пристройки

Пристроенная баня к дому из оцилиндрованного бревна
Также размер бани зависит от размера участка и количества свободного места. Нерационально на шести сотках возводить баню 12х12 метров. И, напротив, на участке площадью в пару гектар можно спокойно располагать банный комплекс любых размеров.

Схема бани на участке

Расположение бани
Стоит подбирать размеры бани под количество посетителей. Если вы планируете ходить в парную в гордом одиночестве, то скромной постройки 2х3 или 3х4 метра будет более чем достаточно. Для большой семьи лучше выбрать размер побольше, от 6х6 м до 6х12 и более, конечно, если вы не планируете занимать парилку по очереди.

Проект бани 2х3 м

Баня 2х3 м, проект
Важно! Не забывайте, что площадь помещений также зависит от толщины стен и перегородок, наличия или отсутствия утепления стен, декоративной отделки.
Габариты самой парной лучше выбирать, отталкиваясь от ваших предпочтений – нравится ли вам париться сидя или лежа, сидеть на полоке, согнув ноги в коленях или лежать, вытянувшись в полный рост. Но не спешите строить парилку необъятной площади, чтобы не тратить на прогрев слишком много времени и ресурсов.

Схемы размещения посетителей в парной
Таблица. Минимальные размеры бани и помещений в ней для 1-2 человек при размещении сидя
| Помещения | Один человек | Два человека |
|---|---|---|
| Площадь парной, м2 | 0,98 | 0,98 |
| Рекомендуемые размеры парной, см | 850х1150 | 850х1150 |
| Площадь предбанника, м2 | Площадь предбанника, м2 | 2,15 |
| Рекомендуемые размеры предбанника, см | 1000х2150 | 1000х2600 |
| Площадь моечной, м2 | 1,49 | 1,67 |
| Рекомендуемые размеры моечной, см | 1150х1300 | 1150х1450 |
| Общая площадь бани, м2 | 4,62 | 5,59 |
| Минимальные размеры, см | 2150х2150 | 2150х2600 |
Таблица. Минимальные размеры бани и помещений в ней для 2-4 человек при размещении лежа
| Помещения | 2-3 чел. | 2-3 чел. | 3 чел. | 4 чел. |
|---|---|---|---|---|
Площадь парной, м2 |
2,34 | 2,34 | 2,7 | 3,0 |
| Рекомендуемые размеры парной, см | 1300х1800 | 1300х1800 | 1400х1800 | 1500х2000 |
Площадь предбанника, м2 |
4,03 | 4,03 | 5,4 | 5,4 |
| Рекомендуемые размеры предбанника, см | 1300х3100 | 1400х3400 | 1500х3600 | 1800х3600 |
Площадь моечной, м2 |
3,24 | 3,6 | 3,78 | 4,2 |
| Рекомендуемые размеры моечной, см | 1800х1800 | 1800х1800 | 1800х2100 | 2000х2100 |
Общая площадь бани, м2 |
9,61 | 10,88 | 10,88 | 11,88 |
| Минимальные размеры, см | 3100х3100 | 3200х3400 | 3300х3600 | 3600х3800 |
Можно обратиться к ГОСТу 52493-2005, регламентирующему работу бань и душевых. Но этот свод правил разработан для общественных бань, а потому для индивидуального строителя носит только рекомендательный характер. В пункте 5 ГОСТа говорится, что размеры самой бани и помещений в ней могут меняться в зависимости от климатических условий местности и национальных традиций.
Высота помещений в бане
Обязательное условие – перед входом в парную должен быть порог либо уровень всего пола парилки должен на 10-15 см выше, чем уровень пола в моечной или комнате отдыха. В моечной рекомендуется делать полы на 3 см ниже, чем уровень чистового покрытия в комнате отдыха.

Порог
Существует традиция, согласно которой выбирают высоту потолка. Измеряют рост самого высокого члена семьи и делают запас, чтобы удобно было махать банным веником. В результате получается от двух до двух с половиной метров. Оптимальная высота потолка – 210 сантиметров.

Париться должно быть удобно
Если сделать потолок слишком высоко, то будет очень удобно сидеть на верхней полке и париться, но объем парной увеличится, а это приведет к лишнему расходу топлива для прогрева помещения.

Варианты размещения людей в парной
Если вы хотите сидеть на верхней полочке, то принимайте расстояние от нее до потолка 100 см. Для положения «лежа» достаточно и пятидесяти сантиметров, но может быть слишком жарко, ведь распределение температуры в парной неоднородное:

Термометр в парной
Главное – чтобы верхняя полочка находилась выше камней в печи (каменку обычно располагают в одном метре от пола), тогда атмосфера будет наилучшей.
Существуют нормы расположения окон в бане:

Окна в бане
Площадь строения
В идеале на каждого посетителя бани должно приходиться от 1,3 до полутора квадратных метров пространства в предбаннике или 1 м2 в парилке. Оптимальная площадь моечной на одного человека – 2,25-2,4 кв.м. Между душевой кабинкой (или лавкой в мыльной комнате, размеры лавки 0,5 х 0,9 метра) следует оставить более 80 см свободного пространства для удобства перемещения. В действительности эту площадь можно немного увеличить для большего комфорта.
Оптимальная полезная площадь бани для 2-3 человек с тремя помещениями (душевая, предбанник и сама парилка с соотношением площадей 1,5 : 2 : 1) составляет примерно 10 квадратных метров.
Как узнать, достаточно ли будет для вас планируемой площади? Самый простой способ – шагами наметить все стенки и перегородки. Зимой это лучше делать на снегу, а летом выполняйте разметку песком или натягивайте веревки.

«Натопчите» на снегу габариты будущей бани
Планировка
Даже если вы верно определите для себя оптимальные размеры бани, но составите планировку нерационально, то уровень комфорта будет понижен.
Рассмотрим вариант планировки бани, допущенные ошибки и способы реорганизации.
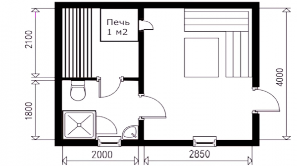
На плане мы видим баню с тремя помещениями – комнатой отдыха, моечной и парной. Комната отдыха и моечная – проходные. Печь топится из комнаты отдыха (с выносной топкой).

План бани с размерами
Обратите внимание на план душевой. Там расположены: унитаз, душевая кабина, рукомойник. Большинство пользователей вряд ли устроит перспектива мыться в туалете, поэтому унитаз устанавливать таким образом не стоит.
Душевую кабину лучше монтировать закрытого типа, так как вода из душевого поддона будет разбрызгиваться во все стороны и это грозит появлением грибка, а если полы и стены из дерева, то срок их службы существенно сократится. Гораздо лучше, если будет организован сбор воды с пола и установлено обливное ведро.
Если посмотреть на комнату отдыха, то здесь нерационально установлен мягкий уголок и стол. Носить дрова и топить печь будет крайне неудобно.

Носить дрова и топить печь неудобно
Обязательно учитывайте размеры той мебели, которую будете устанавливать в комнате отдыха. Чем шикарнее будет угловой диван и дубовый стол, тем больше свободной площади они займут. И наоборот, скромная скамья с табуретами и откидной стол позволят сэкономить несколько сантиметров площади пола.
Обратите внимание на схему установки печи. При таком варианте дымоход будет располагаться достаточно далеко (примерно в полутора метрах) от конька, чистить его будет неудобно (а в банях дымоходы засоряются очень часто).
Если вы любите сразу после жарких процедур выбегать на улицу в снег или купель, то подобная планировка не подходит, ведь придется бежать сразу через два помещения, за время пробежки жар спадет, и удовольствие от контрастных процедур уменьшится. А когда вы будете возвращаться обратно в парную, то водой зальете полы и в комнате отдыха, и в душевой.

Выход из парной
План реорганизации пространства выглядит следующим образом:

Рекомендуемый план помещения

Полы с уклоном к трапу

Обливное устройство

Моечная в бане
Подобный план можно отразить в другую сторону, если так будет удобнее. Ведь вряд ли кому-то хочется, чтобы через окна к нему в баню заглядывали любопытные соседи или прохожие. Рекомендуем сами окна располагать на запад, чтобы меньше тратиться на освещение.

Отзеркаленный план
Что касается размеров, то подобная планировка хороша для бань габаритами более 6х6 метров. Если построить баню по первоначальному плану 4,5 х 4,5 метра, то в комнату отдыха не вместится даже диван, придется париться в одиночестве и, скорее всего, стоя.
Заключение
Построить на собственном участке можно не только классическую русскую баню, но и финскую сауну, турецкий хаммам. Если вы не смогли определить для себя оптимальные размеры помещений, посетите банные комплексы общественные или нанесите визит друзьям, соседям. Прикиньте, сколько примерно пространства необходимо, чтобы комфортно разместиться в парной, при этом сиюминутно не обжигаясь о печь и не толкаясь локтями с другими посетителями. В хаммаме измерьте лежаки и продумайте расположение так, чтобы было удобно ходить между ними.
Не стоит чрезмерно экономить и сокращать площади до минимума. Набиваться в баню, как сельдь в бочку, мало кому понравится. Исключение – мобильные бани, в которых счет свободного пространства идет на сантиметры.

Схема небольшой бани