Печь для бани Калита обзор
Большая часть почитателей бани отдает предпочтение русской парной. И, невзирая на то, что многие изготовители позиционируют свою продукцию как печи для русской бани, на самом деле это всего лишь модели конвекционного типа, выполненные по финской технологии. В отличие от этих моделей дровяные печи Калита производства ООО «Магнум» способны создавать климат, который действительно соответствует лучшим традициям русской парной. У Калиты отличные эстетические и технические характеристики, она эффективно аккумулирует нужное количество тепла и создает качественную конвекцию горячих воздушных потоков, более того, благодаря режиму перманентного горения она (печь) разогревает парильное помещение в рекордно короткие сроки.

Печь для бани Калита обзор
Сильные и слабые стороны печей серии Калита
Ниже приведены основные достоинства печей по сравнению с аналогичными моделями других производителей:

Печь Калита — фото
Единственное, что может не устраивать, – это высокая стоимость продукции. Безусловно, проще приобрести более дешевую и менее функциональную печь, но качественные модели всегда находят покупателя.
Видео – Сравнительная характеристика Калиты и ЧТ-1
Фирма-производитель постоянно усовершенствует выпускаемую продукцию. Так, в течение последних нескольких лет у печей для бани Калита появились следующие улучшения:

Печь с облицовкой змеевиком
Стоит заметить, что некоторые минусы печей изготовитель все еще не сумел исправить – речь идет о небольшой высоте топочного отделения, а также о том, что места стыков между топливным каналом и самим прибором неудобно сужены. Еще некоторые пользователи говорят о прогорании колосников, которые достаточно трудно заменить сразу по двум причинам:
Из-за этого при замене колосника требуется полный демонтаж Калиты. Среди других недостатков – длительный разогрев печи в зимнее время (иногда это занимает до 6 часов), особенно если корпус обложен кирпичом, и небольшой вес загружаемых камней (конкретная цифра зависит от модели). Но зато благодаря тщательно спланированному внутреннему устройству камни разогреваются достаточно сильно, причем всесторонне, из-за чего при поливе и образуется качественный легкий пар.

Каменка Калита
Обратите внимание! При желании Калиту можно оснастить специальным термокожухом (накопителем пара), который закроет камни с целью усиления пара.
Конструктивные особенности печей
Традиционно корпус Калиты выполняется из серого чугуна, стенки имеют толщину 10 мм. При работе печи тепловая энергия отдается камням, а графит в чугуне не только защищает от внутреннего ржавления, но и не дает окалины. Калиту неспроста считают одной из самых качественных и надежных банных печей.

Печь дровяная чугунная Калита с тоннелем, в облицовке арочная (змеевик)
Модели (а их на сегодняшний день существует 23) могут отличаться не только своей конструкцией, но и типом топочной камеры (последняя производится в разных странах). У каждого типа топки есть свои сильные и слабые стороны.
- Первый тип – это камера, длительное время изготавливаемая в Перми. Наиболее популярный вариант, купить который можно практически в любом специализированном магазине. Главное (и, пожалуй, единственное) преимущество такой топки – доступная цена, т. к. модель, во-первых, не на 100% состоит из чугуна, во-вторых, печной тоннель из-за этого недостаточно плотно прилегает, а снизу остается существенный порог. Нельзя отнести к преимуществам и крепление тоннеля к топочной камере – оно производится с помощью специальных ушек из «нержавейки», которые удерживаются исключительно на сварке.
- Второй тип отливается в Канаде с применением новейших японских технологий, поэтому качество продукции более высокое. Топка на 100% чугунная, литье выполнено качественно и надежно, тоннель прилегает максимально плотно, да и эксплуатационный срок радует. Главный недостаток в том, что найти топочную камеру канадского производства на нашем рынке очень трудно, а стоит она намного больше пермского аналога.
- Третий тип – это топки, которые также производятся в Перми, но по качеству отличаются от первого типа: большое каминное стекло, привлекательная дверка, украшенная узорами (производится в Финляндии). Минусы: тоннель все так же плохо прилегает, а топка все так же не на 100% чугунная. А вот стоит модель даже дороже, чем топка канадского производства.
![Печь для бани Калита обзор Печь для бани Калита обзор]()
Калита в бане — фото
Обратите внимание! Отдельно стоит рассказать о печи Калита «Президент», которая, равно как и другие похожие модели линейки, оснащается баком из «нержавейки» объемом 50-80 л. И если использовать «Президент» в системе отопления замкнутого типа, то бак сможет нагревать воду объемом до 200 л.
Печи для бани Калита обзор
Как уже отмечалось выше, линейка Калита включает в себя 23 модели. Все они отличаются друг от друга внешним видом, мощностью, размерами топки и прочими характеристиками.
Калита «Президент»

Калита Президент
Качественная печь премиум-класса, которая производится в трех модификациях:
Технические параметры всех трех модификаций идентичны и будут рассмотрены ниже. Главное отличие заключается в наружной отделке, а также в высоте – это может быть 111 см или 125 см.
«Президент» (облицована змеевиком)

Облицовка плиткой и уголком из змеевика
Эффектный дизайн и отличные характеристики – вот отличительные черты всех печей линейки «Президент». У модели округлые края, что обеспечивает не только слаженный дизайн, но и увеличение теплоотдающей поверхности облицовочного камня. Несколько скошена верхняя часть, что позволило установить финскую дверку SVT сверху. Подобное размещение предотвращает попадание нагретого пара на человека, который поддает топливо.
Корпус выполнен из серого чугуна (толщина стенок топочного отделения составляет 1 см) и облицован натуральным камнем – змеевиком, имеющим темно-зеленый цвет. Ящик, в котором размещаются камни, изготовлен из листов «нержавейки» толщиной 0,4 см. Что характерно, ящики, толщина металла в которых меньше 0,3 см, при высокой температуре и под весом камней теряют форму и деформируются, а это приводит к нарушению конвекции нагретого воздуха. Как результат – стенки ящика начинают касаться каменной облицовки и та дает трещины. Максимальная температура, до которой могут нагреваться камни, составляет 400°С.

Президент в змеевике
Обратите внимание! Камень змеевик известен своими целебными свойствами – он укрепляет иммунную систему, позитивно влияет на дыхательные органы, нормализует кровяное давление. Кроме того, этот камень отлично аккумулирует тепловую энергию.
Стоимость модели «Президент» в змеевике составляет 145-155 тысяч рублей.
«Президент» (облицовка талькохлорит)

Облицованная талькохлоритом печь Президент Калита
Модель с аналогичными характеристиками, единственным отличием которой является облицовочный материал. Здесь печь облицована 50-миллиметровым слоем талькохлорита – мягкого натурального камня, также обладающего целебными свойствами (практически теми же, что и у змеевика). Стоит заметить, что 100 кг талькохлорита по своей теплоемкости соответствуют 500-килограммовой кирпичной печи.
Эта модель стоит на сегодняшний день от 135 до 140 тысяч рублей.
«Президент» (комбинированный вариант)

Комбинированная облицовка печи
«Президент» с комбинированной облицовкой – это относительно новый продукт ООО «Магнум». Здесь верхняя плита, ножки и боковые уголки выполнены из змеевика, а плиты по центру – из талькохлорита. Благодаря такому сочетанию обеспечивается эффектный и контрастный внешний вид прибора. Традиционно технические параметры такие же, как у других «Президентов». Цена – от 141 до 150 тысяч рублей.
Теперь, когда все три модификации модели рассмотрены, можно ознакомиться с их общими характеристиками.
Таблица №1. Основные характеристики печи Калита «Президент»
| Характеристики | Модель 1250 | Модель 1110 |
|---|---|---|
| Возможный выход дымохода | Сверху, справа или слева | Сверху, справа или слева |
| Объем отапливаемого помещения, м. куб. | От 15 до 35 | От 15 до 35 |
| Тип используемого топлива | Дрова | Дрова |
| ВхШхД/вместе с тоннелем, см | 125х65х80/100 | 111х65х80/100 |
| Диаметр дымоходной трубы, см | 13 | 13 |
| Вес модели (вместе с облицовкой), кг | 680 | 630 |
| Вес загружаемых камней, кг | До 180 | До 140 |
| Максимальная длина полена, см | 50 | 50 |
Из всего сказанного можно сделать вывод, что все модификации «Президента» имеют практически идентичные характеристики. Печи отличаются только типом облицовочного материала, а также (незначительно) некоторыми техническими моментами.
Калита ЧТ-1 (чугунная топка)

Установка печи Тайга с чугунной топкой ЧТ-1
Это топочный агрегат, выполненный из чугуна и предназначенный для последующей обкладки кирпичом или камнем. Среди преимуществ ЧТ-1 стоит выделить следующие:
Основные технические характеристики модели:

Чугунная топка ЧТ-1
Топка Калита «Радост»

Чугунная топка Радост
Это чугунный топочный агрегат, отличающийся повышенной тепловой мощностью. Его основные достоинства такие же, как у модели ЧТ-1. Что касается технических характеристик, то они следующие:
Калита «Магнум» (талькохлорит)

Магнум в талькохлорите
Дровяной отопительный прибор с каменкой открытого типа, облицованный натуральным камнем талькохлоритом. Отличительная черта печи заключается в том, что топочная камера ЧТ-1, которая в ней используется, покрыта 220-килограммовой облицовкой, поэтому открытые чугунные элементы отсутствуют. Толщина материала составляет 5 см, благодаря чему тепловая энергия отлично накапливается, а затем постепенно передается в помещение.
Камни нагреваются всесторонне, поэтому при их поливе образуется легкий мелкодисперсный пар, качество которого удовлетворит любого почитателя банных процедур. Вот основные параметры модели:
Стоимость модели – 100 тысяч рублей.

Установка печи Магнум
Инструкция по сборке и эксплуатации. Файл для скачивания
Калита «Магнум»
Калита, облицованная нержавеющей сталью

Калита металл
Модернизированный вариант традиционной печи для русской бани, созданный для установки в парилке с выходом топочного отделения в соседнее помещение. Модель традиционно выполнена из серого чугуна, который содержит графит – благодаря этому корпус не ржавеет и не дает окалины.
Обратите внимание! При желании печь можно оснастить специальным термокожухом (накопителем пара) – он полностью закроет камни, а каменка в результате станет закрытой.

Паронакопитель для печей Калита
Еще можно установить бак (также выполненный из «нержавейки») объемом 50 л и 80 л, теплообменник или выносную емкость для нагрева воды на 100 л. Вот основные характеристики модели:
Эта печь обойдется в 53500 рублей.
Калита с каменкой открытого типа (талькохлорит)

Профессиональная чугунная печь Калита в талькохлорите с открытой каменкой
Модель характеризуется быстрой конвекцией воздуха и непрерывным горением, что позволяет в кратчайшие сроки разогревать помещение. Выполнена из серого чугуна с большим содержанием графита. Вместительная каменка, возможность дополнительной установки термокожуха и бака для нагрева воды объемом 50-80 л. Конструкция разборная, благодаря чему ее удобно транспортировать и устанавливать.
Характеристики прибора:
Стоит модель 90500 рублей.
Калита с каменкой открытого типа (змеевик)

Профессиональная чугунная печь Калита в змеевике с открытой каменкой
В целом, модель имеет те же характеристики, что и предыдущий вариант Калиты. Отличие лишь в материале, использованном при облицовке – здесь это камень змеевик. Габариты, вес и проч. такие же.
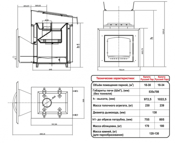
Калита «Русский пар»
Модель выпускается в двух модификациях:

Калита Русский пар с порталом и дымоходом из талькохлорита
Ранее мы уже выяснили, чем отличаются эти варианты отделки, поэтому рассмотрим только общие характеристики «Русского пара». Начнем с того, что это модели премиум-класса, которые и по внешним данным, и по техническим параметрам отличаются от остальной продукции фирмы-производителя. Схема сборки здесь более продумана, благодаря чему для того, чтобы собрать печь, потребуется максимум час.
Обратите внимание! Главное нововведение – это ящик для камней (вместительность – 180 кг), выполненный из «нержавейки» толщиной 0,4 см.
Также стоит сказать о новой чугунной дверке 50х50 см, покрытой черной термоустойчивой краской порошкового типа. Она (дверка) закрывается герметично, что полностью исключает поддымливание. Прибор может топиться как непосредственно из парилки, так и с соседнего помещения.

Калита Русский пар — схема
Характеристики печей «Русский пар» приведены в таблице.
Таблица №2. Основные параметры печи Калита «Русский пар»
| Характеристики | Модель 1600 | Модель 1365 | Модель 1110 |
|---|---|---|---|
| ВхШхД/вместе с тоннелем, см | 160х65х80/100 | 136,5х65х80/100 | 111х65х80/100 |
| Диаметр дымоходной трубы, см | 13 | 13 | 13 |
| Объем отапливаемого помещения, м. куб. | От 15 до 35 | От 15 до 35 | От 15 до 35 |
| Возможный выход дымохода | Сверху, справа или слева | Сверху, справа или слева | Сверху, справа или слева |
| Тип используемого топлива | Дрова | Дрова | Дрова |
| Вес модели (вместе с облицовкой), кг | 850 | 760 | 700 |
| Вес загружаемых камней, кг | До 220 | До 180 | До 140 |
| Максимальная длина полена, см | 50 | 50 | 50 |
| Цена, в рублях | 165 тысяч | 147 тысяч | 135 тысяч |
Калита «Арочная» (другое название – Калита М)

Калита арочная
Новая модель, имеющая типично русский внешний вид. Выпускается в двух вариантах облицовки – в змеевике и талькохлорите. Разработчики существенно усилили тепловую инерцию, благодаря которой температура в каждой части парилки однородная и стабильная. Объемная каменка, вмещающая от 100 кг до 120 кг камней, быстрый разогрев (занимает примерно два часа) и длительное поддержание температуры.

Печь Калита установлена на бетонный фундамент
Технические параметры печи следующие:
Стоимость модели – 118 350 рублей (при отделке талькохлоритом) и 111 300 рублей (при отделке змеевиком).

В каменке колотый жадеит

Калита Арочная в талькохлорите
Калита ТМ (талькохлорит)
Уникальная модель премиум-класса, созданная для истинных почитателей русской бани. Топочная камера на 100% из чугуна, каменка – закрытая. Основное отличие модели состоит в том, что каменка в ней располагается внутри облицовки, благодаря чему камни длительное время удерживают требуемую температуру.

Калита Русский пар с дымоходом в парной
Печь лишена минусов, присущих металлическим моделям, к тому же она не сжигает кислород в помещении. Открытые металлические элементы отсутствуют, что исключает ожоги при случайном прикосновении. Облицовка талькохлоритом может выполняться в три и четыре яруса.
Таблица №3. Параметры печи Калита ТМ
| Характеристики | Модель с четырехъярусной облицовкой | Модель с трехъярусной облицовкой |
|---|---|---|
| ВхШхД/вместе с тоннелем, см | 151х62,5х77/92 | 111х62,5х77/92 |
| Диаметр дымоходной трубы, см | 13 | 13 |
| Объем отапливаемого помещения, м. куб. | От 20 до 37 | От 20 до 37 |
| Возможный выход дымохода | Сверху или сбоку | Сверху или сбоку |
| Тип используемого топлива | Дрова | Дрова |
| Вес модели (вместе с облицовкой), кг | 220 | 220 |
| Вес загружаемых камней, кг | До 150 | До 110 |
| Стоимость, в рублях | 150 300 | 125 000 |
Калита «Витязь»

Калита Витязь
Еще один представитель моделей премиум-класса, предназначенный не только для традиционной русской бани, но и для сауны. В приведенной ниже таблице описаны основные характеристики «Витязя».
Таблица №4. Параметры модели Калита «Витязь»
| Характеристики | Модель 1250 | Модель 1110 |
|---|---|---|
| ВхШхД/вместе с тоннелем, см | 125х65х80/100 | 111х65х80/100 |
| Диаметр дымоходной трубы, см | 13 | 13 |
| Объем отапливаемого помещения, м. куб. | До 35 | До 35 |
| Возможный выход дымохода | Сверху, справа или слева | Сверху, справа или слева |
| Тип используемого топлива | Дрова | Дрова |
| Вес модели (вместе с облицовкой), кг | 680 | 630 |
| Вес загружаемых камней, кг | 180 | 140 |
| Максимальная длина полена, см | 50 | 50 |
| Стоимость, в рублях | 165 000 | 145 000 |
Калита «Тайга» (талькохлорит)

Печь премиум класса Тайга в облицовке талькохлорит для бани и сауны
Модель премиум-класса, облицованная талькохлоритом и созданная для использования в сауне или бане. Характеристики печи следующие:
Калита «Тайга» стоит от 162 до 190 тысяч рублей.
Модель «Князь-Калита» (талькохлорит)

Князь-Калита
Печь премиум-класса со следующими параметрами:
Калита «Егерь»

Егерь

Печь Егерь
Печь облицовывается змеевиком или талькохлоритом. Выпускается в двух модификациях:
Ознакомимся с основными характеристиками.
Таблица №5. Параметры банной печи «Егерь»
| Характеристики | Модель 1250 | Модель 1110 |
|---|---|---|
| ВхШхД/вместе с тоннелем, см | 125х65х80/100 | 111х65х80/100 |
| Диаметр дымоходной трубы, см | 13 | 13 |
| Объем отапливаемого помещения, м. куб. | От 15 до 35 | От 15 до 35 |
| Возможный выход дымохода | Сверху, справа или слева | Сверху, справа или слева |
| Тип используемого топлива | Дрова | Дрова |
| Вес модели (вместе с облицовкой), кг | 680 | 630 |
| Вес загружаемых камней, кг | 180 | 140 |
| Максимальная длина полена, см | 50 | 50 |
| Стоимость, в рублях | 220 000 | 260 000 |
Калита «Гауди»

Гауди
Роскошная банная печь, выполненная на основе модели ЧТ-1. Облицована талькохлоритом и украшена ручным декором. Дизайн не вписывается в рамки привычного понимания дровяной печи, но в этом и заключается уникальность модели. Вот основные параметры:
Обойдется такая печь в 170 тысяч рублей.
Калита «Джек Магнум»

Дровяная печь Джек Магнум в талькохлорите
Особенность этой дровяной печи заключается в том, что топка ЧТ-1, которая в ней используется, покрыта 220-килограммовой облицовкой из камня талькохлорита, поэтому открытые металлические элементы отсутствуют. Толщина облицовки составляет 5 см, благодаря чему тепловая энергия отлично накапливается, а затем постепенно передается в помещение.
Камни нагреваются сразу со всех сторон, поэтому при их поливе образуется легкий мелкодисперсный пар, способный своим качеством удовлетворить любого почитателя банных процедур. Вот основные характеристики модели:
Стоимость прибора – 105 тысяч рублей.
Модель «Калита-Экстрим»

Калита-Экстрим
Последняя печь модельного ряда Калита, также являющаяся представителем моделей премиум-класса. Облицована талькохлоритом. Параметры приведены ниже:
Модель стоит 162 тысячи рублей.
Особенности установки
Расположение печи в парилке регламентируется СНиПом 41-01-2003.
СНиП 41-01-2003. Файл для скачивания.
СНиП 41-01-2003
В самой установке нет ничего сложного, т. к. она ничем не отличается от монтажа других металлических печей в бане. Все технические моменты указаны в инструкции производителя.
Модель «Князь-Калита», инструкция по эксплуатации. Файл для скачивания.
Инструкция по эксплуатации печи «Князь-Калита»
Сам производитель рекомендуется устанавливать Калиту с керамическим дымоходом, который в последующем нужно облицевать тем же цветом, что и сама печь. Как вариант – верхнюю крышку корпуса можно использовать в качестве опоры для того, чтобы обкладывать однослойную трубу.
Также стоит отметить, что если поставить печь вровень с поверхностью пола, то даже в смежных помещениях он (пол) будет хорошо нагреваться, ведь топки во всех моделях линейки достаточно мощные.

Установка печи Калита (часть 1)

Установка печи Калита (часть 2)
