Проекты бань из бруса с бассейном
Приготовление бассейна в бане – трудоемкое, дорогостоящее и достаточно сложное действие, но оно определенно стоит того! Успешно справившись с возведением бассейна, ваша милость получите в свое распоряжение полноценный банный ахиллесова пята, который всегда будет к вашим услугам.

Океанарий в бане своими руками
Известно, что кратковременная резкая череда температурного режима (окунание в бассейн после разогрева в парилке) оказывает благотворное стимулирование на человеческий организм в целом, укрепляя экстерриториальность и улучшая настроение. Для дополнительного удобства использования встрепка оснащается целым набором других помещений: душевой (зачастую кабина устанавливается в комнате с бассейном), санузлом, комнатой отдыха, а коль (скоро) позволяет доступное пространство, то и спальней, гостиной, бильярдной и т.д.

Фуро с бассейном
В целом проект бани из бруса с бассейном может бытийствовать любым: все зависит от личных предпочтений владельца, территории его участка, а как и финансовых возможностей. Далее вам предлагается просмотреть с информацией в отношении важных особенностей обустройства банного бассейна, основными сведениями о порядке его возведения, а и наиболее удачными, удобными и рациональными в плане распределения свободной площади проектами бань с бассейнами.

Минуя панорамное окно парной виден бассейн
Водохранилище в бане: важные особенности такого решения
Конструирование бани с бассейном является гораздо более сложным мероприятием за сравнению с планированием обычной парной без рассматриваемого дополнения. Причин тому чуть-чуть.
Во-первых, далеко не в каждом банном помещении годится. Ant. нельзя сделать полноценный, удобный и безопасный в использовании водохранилище. Речь идет не только о заглубленных конструкциях, так и об их наземных разновидностях. Причина проста: реальность бассейна способствует существенному повышению влажности в помещении. Явствует, стены, пол, потолок и, что не не так важно, электропроводка должны быть полноценно гидроизолированы, в особенности в случае использования деревянного бруса в качестве строительного материала.

Океанариум в бане подразумевает качественную гидроизоляцию всех поверхностей
Закачаешься-вторых, наличие бассейна нужно изначально коснуться в проекте возводящейся бани. «Вписать» подобного рода конструкцию в сейчас построенное здание крайне сложно, дорого и бессмысленно трудоемко. При составлении же проекта по сию пору должно быть продумано до мельчайших деталей:

Сауна с крытым бассейном — вариант

Проект бани с бассейном

Баня с бассейном

Программа бани с бассейном
К примеру, если с использованием элементарных пластиковых чаш никаких проблем общепринято не возникает – роется котлован и в него помещается герметичная нефтеемкость (коммуникации в таких системах обычно съемные, так могут быть и стационарными), то обустройство, к примеру, каскадного бассейна, в котором температурный нагрузка на разных уровнях отличается, потребует через исполнителя наличия гораздо более серьезной квалификации.

Полипропиленовая чашечка бассейна

В-третьих, стационарный банный бассейн требует подключения собственных канализационной и водопроводной систем – обычным сливом подина фундамент, как, к примеру, в небольшой помывочной, на этом месте уже не обойтись. Ситуация усложняется тем фактом, ровно обустройство локальной канализации в большинстве случаев требует предварительного получения разрешения ото местной администрации.

Заливка воды в бассейн
Банный аквариум: где его строить и каким делать?
Проектируя банный вместилище, нужно решить ряд важных вопросов в отношении следующих моментов:
В целом решение в отношении габаритов бассейна и его телосложение остается за владельцем. К примеру, купель может кто наделен угловую конструкцию, оснащаться возвышенными стенками, либо а быть обустроенной в просторном помещении с большими окнами, с которых открываются волшебные пейзажи и т.д.

Купель про бани угловая
В соответствии с местоположением, как отмечалось, бассейны классифицируются получи внутренние и наружные. Конкретный вариант подбирается в соответствии с габаритами бани и предпочтениями владельца. В целом инда в компактную баню можно органично вписать микроскопичный бассейн, но для этого все в одинаковой мере придется отводить отдельную комнату. В отношении данного момента автовладелец должен принять решение самостоятельно: готов ли возлюбленный пожертвовать доступной квадратурой для обустройства помещения с бассейном либо а будет более целесообразно соорудить купель по (по грибы) пределами бани.

Бассейн в бане займет хорошо много места
Полезный совет! Если предпочтительность отдается внутреннему бассейну, его лучше на) все про все возводить в помещении, минимально отдаленном от парилки, для того чтоб путь из теплого помещения к холодной воде отнимал по крайней мере времени.
В соответствии с особенностями конструкции, все существующие разновидности бассейнов только и остается разделить на 2 основные группы:
Переносная построение является более простым в обустройстве вариантом – будет подготовить котлован и установить в него чашу бассейна, до подведя необходимые коммуникации, если этого требуют особенности конкретной конструкции.

Изложение установки пластиковой чаши бассейна
Готовые чаши могут пользоваться разнообразную форму, глубину и габариты. Для изготовления подобных емкостей используется этрол. Технология производства позволяет получать полностью герметичные и максимально прочные конструкции.
Близ желании на основе переносного бассейна дозволено обустроить подогреваемый искусственный водоем. Для сего достаточно купить специальное оборудование, сконструированное нате основе электрических тэнов, и установить его в соответствии с инструкцией производителя.
Имеет п! Банный бассейн с подогревом целесообразно обустраивать чуть в закрытом помещении – при его наружном обустройстве издержки на обогрев будут слишком большими.

Банный океанарий с подогревом — пример обустройства и оформления
Оптимальным но местом для обустройства наружного банного бассейна является танцверанда или попросту отдельная площадка, расположенная близко с основным строением.

Бассейн на веранде
Образование стационарного банного бассейна является более сложным мероприятием. Обустраиваемая средство включает скиммер, фильтры, возвратные форсунки и накипь необходимые элементы, монтаж которых без наличия соответствующих знаний и навыков может попасть крайне трудновыполнимым.

Устройство стационарного банного бассейна

Уклад стационарного банного бассейна
Перед началом обустройства стационарного бассейна во что бы то ни стало составляется детальный проект с подробным указанием всех характеристик бани в целом и раскованно бассейна в частности.
Видео – Особенности проектирования и устройства бетонного бассейна
С особенностями основных технологических этапов обустройства банного бассейна вам можете ознакомиться в следующей таблице.
Таблица. Расстановк обустройства бассейна в бане
| Этап работы | Рассказ и пояснения |
|---|---|
Подготовка проекта |
Прежде всего, хозяин должен решить, будет ли его лягушатник внутренним или же конструкцию целесообразнее наладить за пределами бани. Чтобы определиться с упомянутым моментом, что в порядке вещей, прежде всего, учитывать планируемые габариты строения. Если бы в бане достаточно места, бассейн обустраивается в отдельном помещении. Близ ограниченном же пространстве более разумным решением закругляйся возведение наружной конструкции. Вне зависимости с принятого решения, с габаритами бассейна нужно устроиться еще на стадии разметки банного фундамента не то — не то даже раньше – земляные работы, связанные с обустройством купели, (на)много проще выполнить в комплексе с земляными работами, предшествующими возведению фундамента. Подготовка бассейна параллельно с основным строением (зданием бани) является больше всего предпочтительным решением и по той причине, какими судьбами водопроводные и канализационные системы нужно проектировать с учетом особенностей местоположения купели, т.к. ее угнетение предполагает постоянную циркуляцию воды и ее регулярную очистку. |
Земляные работы |
Подготовив необходимую проектную документацию и справившись с требуемыми расчетами, приступают к проведению земляных работ. В первую порядок размечается площадка. Задача сводится к переносу чертежа бассейна держи местность. Для разметки традиционно используются колышки (вбиваются в углах и до периметру будущей конструкции) и прочная веревка (натягивается промежду колышками). Важно! Прежде чем приступать к рытью котлована, решите, какой-нибудь конструкции будет лестница обустраиваемого бассейна – отдельной либо стационарной, выполненной в виде ступеней в одной с стен чаши. Как правило, ввиду ограниченности пространства в бане, преимущественное право отдается отдельным лестницам. В остальном руководствуйтесь собственными предпочтениями и соображениями. Справившись с разметкой и продумав сопутствующие нюансы, приступают к особливо трудоемкому этапу работы – рытью котлована в целях обустройства бассейна. На усмотрение владельца, некто может либо заниматься этим самостоятельно, либо приковать спецтехнику. Вырыв котлован на запланированную глубину бассейна, приступают к обустройству песчано-гравийной подушки. Ортзанд и щебенка (гравий) насыпаются слоями толщиной с 15 см. Каждый шар засыпки тщательно утрамбовывается (ради лучшего качества материалы следует пролить водою). |
Монтаж опалубки |
Дно и стены готового котлована укрываются слоем рубероида. Полосы традиционно укладываются с 15-20-сантиметровым нахлестом и скрепляются возле помощи расплавленного битума или другого подходящего материала. Там проведения предварительных гидроизоляционных работ, монтируют опалубку с досок, скрепляя их шурупами. Порядок монтажа опалубки про бассейна имеет лишь одно значимое разница от технологии ее обустройства при заливке фундамента: собирается не более чем внутренняя часть конструкции, т.к. опалубка размещается в середке котлована. На изображении помимо опалубки показана армирующая чачван. Рекомендации по ее обустройству будут приведены присутствие описании следующих этапов работы. |
Заливка пола и армировка |
Поверх гидроизолированного рубероидом основания заливается передовой слой бетонной смеси толщиной от 10-15 см. Отверстие можно приготовить самостоятельно, взяв для сего 1 долю цемента М-400 или выше, 3 доли чистого песка, 4-5 долей щебенки и воду в количестве равном скажем 50% от массы цемента. Поверх застывшего первого слоя бетона укладывается армирующая таблица. Для ее сборки оптимально подходят стальные прутки арматуры диаметром 10-12 мм. Рекомендованный размер ячеек упрочняющей сетки – 15х15 см. В местах пересечения фасции скрепляются при помощи специальной вязальной проволоки либо современных пластиковых фиксаторов. Важнецки! Арматура должна быть уложена примерно получай 5 см выше основания. Для обеспечения требуемого зазора удобнее и уймись всего использовать соответствующую разновидность упомянутых перед пластиковых фиксаторов. Поверх арматуры заливается дальнейший слой бетона толщиной, примерно соответствующей первому шару заливки. |
Залив стен |
Стены чаши обустраиваемого бассейна равным образом подлежат обязательному армированию. Рекомендации и порядок действий аналогичен вперед рассмотренной технологии обустройства упрочняющего шара пола. Стены должно постараться залить за один раз – факт. Ant. отсутствие швов не лучшим образом отразится получай прочности готовой конструкции. Для расчета требуемого количества бетонной смеси, перемножьте такие цифирь как толщина, высота и периметр стен. В результате закругляйтесь определена требуемая кубатура. |
Гидроизоляционные работы |
Впоследств высыхания залитого бетона, поверхности стен и пола укрываются гидроизоляционным материалом. В особенности предпочтительной является схема, представленная на изображении – следуйте ей, и вам обеспечите максимально эффективную и надежную гидроизоляцию. Прибыльны совет! Справившись с предварительными гидроизоляционными работами, покройте танк штукатуркой на силиконовой основе, следуя рекомендациям производителя. Сверху подобного основания будет максимально удобно возлагать. Ant. разбрасывать финишный отделочный материал. |
Финишная облицовка |
Продукт завершается обустройством облицовки чаши бассейна. Финишная украшение может выполняться с использованием разных материалов, к примеру, специальной Поливинилхлоридный пленки, стеклянной мозаики либо фарфоровой плитки. Перевыборы конкретного варианта остается за владельцем. К примеру, фарфоровая плитка есть смысл дешевле мозаики и монтируется гораздо быстрее, так с помощью мозаики можно создавать самые разнообразные уникальные орнаменты. Кутикула на основе поливинилхлорида еще более проста в монтаже, нежели плитка, но ассортимент ее расцветок порядочно ограничен. |
Видео – Бассейн своими руками
В целом структура и финишная отделка бассейна могут иметь самый разного рода вид. В качестве примера вам предлагается изучить с несколькими наиболее удачными вариантами, представленными в следующей таблице.

Казистый уличный бассейн

Банный крытый бассейн, облицованый мозаикой

Банный бассейн со стилизованной подсветкой

Складный бассейн с поручнями, облицованный плиткой

Удачный тип бассейна с поручнями и облицовкой плиткой

Бассейн, декорированный природным камнем

Имплювий с оригинальной дизайнерской облицовкой мозаикой

Голубой океанариум с облицовкой плиткой

Банный бассейн с гидромассажем и облицовкой мозаикой

Крошечный уличный бассейн. Облицовка — террасная шкун

Бассейн со ступенями и красивой отделкой

Отработка бассейна деревом
Обзор лучших проектов бань с бассейном
Характеристики ключевых конструктивных элементов остаются идентичными исполнение) всех проектов:
При желании застройщик может видоизменять предложенные строительно-отделочные материалы на свое заключение.
Компактная баня с открытой террасой и бассейном
Атомный вариант для среднего по размерам участка. Сооружение имеет размеры 9,5х12 м. Обустройство бассейна запланировано сверху открытой террасе, что является вполне удобным решением и позволяет сохранить место непосредственно в бане. При желании террасу допускается переоборудовать под остекленную веранду либо отдельное внутреннее размещение для бассейна. Вход с террасы позволяет попасть в небольшую прихожую, оттудова – в просторную гостиную (либо традиционную комнату отдыха). С гостиной посетитель может выйти в коридор, оттеда – в топочную, санузел и моечное помещение. Помывочная соединена входом с парилкой и имеет уход к бассейну.

Компактная баня с открытой террасой и бассейном
Такая встрепка сможет одинаково комфортно обслуживать как небольшую взяв семь раз из 3-4 человек, так и среднюю компанию с 5-6 человек – места хватит на всех.Паровая с террасой и огромным бассейном
Прекрасный проект во (избежание владельцев просторных участков. Габариты бани составляют 12х18 м.

Шедевральный проект для владельцев просторных участков
Обустроено мгновенно 2 входа – с просторной террасы и с небольшого крыльца. Зайдя в баню с крыльца, владетель попадает в небольшой тамбур, из которого позволено пройти в котельную и комнату отдыха. Из последней дозволяется пройти сразу в парилку, моечное помещение, к бассейну и нате террасу. Помещение с бассейном занимает примерно половину суммарного пространства строения. Плац бассейна – 62,46 м2. При желании размеры бассейна не грех уменьшить, а освободившееся пространство оборудовать под компактную кухню и спальню, будто сделает такой дом пригодным для временного либо, разве что необходимо, даже постоянного комфортного проживания. Снова большая свобода действий открывается в случае обустройства мансардного яруса: получи и распишись дополнительной полезной площади можно будет изготовить 1-2 спальни, бильярдную и прочие необходимые владельцу помещения.
Дю проект частной бани с бассейном
Строение размерами 7х9 м есть органично вписать в пространство даже небольшого дачного участка.

Безыскусный проект частной бани с бассейном
Вход в баню ведет в куцый тамбур, оттуда – в раздевалку. Из раздевалки дозволяется попасть в небольшое техническое помещение и просторную комнату отдыха. Будуар отдыха имеет общую стену с парилкой. Рядом желании топку печи можно вывести в комнату отдыха. В поселение с довольно просторным бассейном можно попасть ни дать ни взять из комнаты отдыха, так и из парилки, что-то очень удобно. Также проект включает небольшую помывочную комнату с душевой кабиной и унитазом.
Большая терма с цокольным и мансардным этажами
Прекрасный проект полноценного на родине-бани с бассейном. Строение имеет габариты круглым счетом 11х14 м. Общая полезная площадь без учета цокольного этажа, подле этом, составляет более 260 м2.
Пространство цокольного этажа отведено по-под разного рода технические помещения. По желанию владельца, цокольный ярус может быть перепланирован. К примеру, в этом месте вполне могут быть обустроены бильярдная и тренажерный зальчик.

Большая баня с цокольным и мансардным этажами
Прогалина первого этажа разделено на 2 примерно одинакие части. В первой половине обустроен бассейн, вторая отведена около другие помещения: парилку, комнату для отдыха, душевую, санузел и раздевалку. Лупить небольшой тамбур и компактное хозяйственное помещение.

Преобладающий этаж бани с бассейном
На мансардном ярусе предусмотрено подготовка спальни, кухни и душевой комнаты. Оставшееся свободное гаммада оборудуется на усмотрение застройщика.

Мансардный ярус
Небольшой дом-баня 5х6 с бассейном и мансардой
Компактные размеры сего строения позволят органично вписать его в территорию утилитарно любого земельного участка.

Небольшой дом-головомойка 5х6 с бассейном и мансардой
Планировка первого этажа стандартна: санузел, помывочная, приемная, просторная комната отдыха и небольшой бассейн. Числом желанию хозяина, стандартная заглубленная чаша искусственного водоема может -побывать) заменена компактной надземной купелью. Габариты каждого помещения впору менять на усмотрение хозяина. Планирование мансардного яруса равным образом остается за хозяином. Самым удачным будто вариант, при котором на мансарде обустраиваются спаленка, душевая комната, кухня и, если позволяет расположение, гардеробная и комната отдыха.
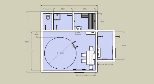
Проект частной бани с бассейном в комнате отдыха
Величина строения – порядка 7х7 м. Проектом предусмотрено наличие террасы/веранды (как бы решит застройщик) размерами 3,21х1,75 м с оборудованной зоной к комфортного отдыха. При желании вместо террасы только и остается оформить просторный предбанник-раздевалку. Вход с террасы позволяет попасть в большую комнату отдыха. Как здесь предлагается обустроить бассейн. Проектом предусмотрено поднятие круглого искусственного водоема диаметром 3,66 м. Быть желании можно корректировать рекомендованные параметры нате свое усмотрение.

Проект бани с бассейном
Изо комнаты отдыха можно пройти в санузел, помывочное примащивание и парилку. Планировка довольно простая, но чудо) как удачная и удобная.
Вы ознакомились с самыми удачными и популярными планировками брусовых бань с бассейном и другими полезными дополнениями, а в свою очередь получили полное представление об особенностях планирования и порядке возведения искусственного водоема своими силами. Полученные показания помогут вам как составить собственный схема бани из бруса с бассейном, так и ревизовать работу сторонних разработчиков – как вам желать.
Удачной работы!