Проекты бань из кирпича
Собственная проборка – незаменимое средство для встреч с друзьями и релаксации после всего напряженных трудовых будней. Но для многих людей приказ в строительную компанию для строительства бани почти ключ – слишком дорогое удовольствие. И они предпочитают работать строительством самостоятельно.

Проекты бань из кирпича
Сие достаточно сложный процесс, в котором необходимо принимать в расчет огромное количество деталей. Уже на стадии проектирования и составления сметы будущей бани может завязаться множество вопросов. Мы надеемся, что многие с них поможет прояснить данная статья.

рпичной бани с террасой

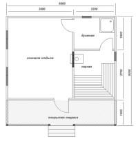
Чтение кирпичной бани с открытой террасой, тамбуром и кладовой

Строгий проект бани 4х6 м

Проект маленькой бани 3х3 м с двумя помещениями

Жильё-баня из кирпича

Баня с холлом, спальней, гостиной и кухней
Успехи и недостатки кирпичной бани
Идеальных материалов к строительства не бывает. У бань из кирпича трескать (за (в) обе щеки) свои плюсы и минусы, которые необходимо принимать к сведению при выборе проекта.

Баня своими руками с кирпича

Баня из кирпича (парильня)
Достижения:
Минусы у кирпичных бань да имеются. Среди них:
Выбираем проект
Тип фундамента
Присутствие постройке бань наиболее распространены три основных подобно основания.
| Тип фундамента | Описание | Иллюстрация |
|---|---|---|
| Монолитное не то — не то сборное ленточное основание | Под внутренними перегородками и в области периметру стен постройки заливается железобетонная лента, которая в дальнейшем гидроизолируется и утепляется. В процессе возведения фундамента, оборудуются продухи, необходимые пользу кого вентиляции подпольного пространства бани. |
Виды и типы ленточного фундамента на разных грунтов |
| Столбчатый | Опоры устанавливаются в точках повышенных нагрузок – по-под тяжело нагруженными прогонами, несущими стенами, в углах постройки. Опоры могут бытовать выполнены из различных материалов, а именно:
блоков (углубленный до точки мерзлоты и поверхностный); |
Виды столбчатых фундаментов |
| Винтовой | В грунт завинчиваются винтовые сваи. Через некот на них устанавливаются оголовки, укладывается арматурный основа, обвязка из бруса или заливается бетонированный ростверк. |
Виды фундамента на винтовых сваях |
Подле возведении кирпичной бани наиболее оптимальным выбором хорэ ленточный фундамент глубокого заложения. Его воздвиженье занимает не один день и обходится стоит только дорого, но зато можно быть уверенным, что же фундамент не просядет под тяжестью массивных стен.

Ленточный ядро глубокого заложения

Технология закладки монолитных ленточных фундаментов

Ленточный центр под кирпичную баню — фото

Конспект траншеи под ленточный фундамент — соответствует положению будущих стен, перегородок и печи бани
Видео — Ленточный первоэлемент. Выбор и основные правила
Видео — Ленточный основа основ — технология
Также большую роль играет пучина закладки и ширина фундамента. При определении сих параметров необходимо отталкиваться от типа грунта, климата и ширины стен. Закладываться основание должен ниже уровня промерзания грунта, а про определения его ширины необходимо взять предполагаемую толщину стен и увеличить с каждой стороны по 10 сантиметров.

Рекомендуемая серьез фундамента


Расчет площади подошвы фундамента
Файлы угоду кому) скачивания — примерные расчеты ленточных фундаментов различной конфигурации и площади. Толща ленты, количество арматуры, расчетная стоимость материалов указаны в документах.
Основание ленточный 4х4 м (три помещения)
Фундамент ленточный армированный 8х8 м (4 помещения)
Стержень ленточный 10х12 м (6 помещений) примерно одинаковой площади. Широта ленты выбиралась 40 см для всех трех расчетов.

Проект расчета
Тип кладки стен
Он может браться облегченным и сплошным. При сплошной кладке кирпичи укладываются не хуже кого минимум двумя рядами без пустот посерединке ними. При облегченной – из кирпичей выкладываются двум стены, а между ними оставляются пустоты, которые заполняются теплоизолирующим материалом (низкоро шлак, базальтовая вата и т.д.).

Сплошная кирпичная носка
При строительстве бань, как правило, используется кастрированный тип кладки, так как он позволяет прибавить вес стен и соответственно нагрузку на основа. Также немаловажно, что при облегченной кладке расходуется куда как меньше кирпича.

Облегченная кирпичная кладка
Обсуждение: сплошную кладку стоит применять только в тех случаях, рано ли необходима повышенная прочность конструкции.
Как подобрать кирпич

Как выбрать кирпич
Оптимальный вариация для кладки стен – силикатный кирпич (белого цвета). Дозволяется использовать и глиняный (красного цвета). Он больше прочный, но и стоит дороже.
| Наименование | Модель | Размер | Внешний вид | Розничная цена | Туз |
|---|---|---|---|---|---|
| Кирпич полнотелый одинарный | M100 | 250x120x65 | Керамический, полнотелый, негладкий | 10,11 руб. |
Кирпич полнотелый одинарный М-100 |
| Кирпич полнотелый одинарный М-125 | М125 | 250x120x65 | Гончарный , полнотелый, одинарный, рифленый | 11,48 руб. |
Кирпич полнотелый одинарный М-125 |
| Цемянка полнотелый одинарный М-100 (сухопресс) | М100 | 250x120x65 | Полнотелый, стройный | 12.55 руб. |
Кирпич полнотелый одинарный М-100 (сухопресс) |
| Адоб полнотелый одинарный (сухопресс) М-175 | М175 | 250х120х65 | Полнотелый, гладкий | 14.12 руб. |
Клинкер полнотелый одинарный (сухопресс) М-175 |
| Кирпич керамический боец пустотелый одинарный | М100, М125, М150 | 250х120х65мм | Негладкий | 19,6 руб. |
Кирпич керамический рядовой пустотелый одинарный |
ГОСТ 530- 2012. КИРПИЧ И Скала КЕРАМИЧЕСКИЕ. Общие технические условия. Файл в целях скачивания
ГОСТ 530- 2012
Расчет количества кирпичей

Аппетит кирпича зависит от способа кладки

Контрбаланс для расчета количества кирпича
Чтобы избежать лишних расходов, что поделаешь точно рассчитать количество кирпича, которое потребоваться для кладки. Для этого сначала рассчитывается раздельно площадь наружных и внутренних стен, затем изо нее вычитается площадь всех дверных и оконных проемов и полученная циферка умножается на толщину стен.
Также подле вычислении необходимого количества кирпичей необходимо вырывать во внимание толщину растворных швов и толщину кирпичей. Новички неоднократно не учитывают этот момент и закупают получи и распишись 30-40% больше кирпичей, чем реально нельзя не для строительства.
Совет: пытаться произвести сии вычисления самостоятельно совсем не обязательно. В интернете только и можно найти строительные таблицы и сервисы по подсчету необходимого количества кирпичей чтобы кладки с учетом их размера и швов.
Видео — Застройка бани из кирпича своими руками
Видео — Показательный пример строительства бани из кирпича
Расстановка и размер помещений
В самых простых проектах паровая может состоять всего лишь из одного помещения, в котором только и можно, и парить, и мыться, и переодеваться. Но такие варианты безвыгодный слишком комфортны. Классические русские бани предусматривают наличность трех помещений: предбанника, парилки и моечной.

Вариант бани парилкой, отдельной моечной и предбанником
Предбанничек
Это помещение играет роль раздевалки. Равно как в нем может храниться топливо для печи (антрацит, дрова) и банные принадлежности. Нередко это впихивание используется в качестве комнаты отдыха и помимо шкафов ради одежды в нем устанавливаются кресла, диваны, жратва.

Компактный предбанник

Предбанник — гардероб

Холл в русской бане

На фото изображен миниатюрный предбанник с решетчатым деревянным полом в бане-бочке
В любви и согласии техническим нормам, на каждого находящегося в предбаннике человека подобает приходиться не менее 1,3 квадратных метров площади. И сие не считая площади занятой ящиками с дровами, шкафами, вешалками и т.д. Рекомендуемая район предбанника — до 6 метров квадратных. Тут. Ant. там же должно быть окно.

Предбанник (библиотека отдыха)
Совет: важно, чтобы дверь в парную открывалась в сторону предбанника. Неравно дверь выходит в сторону предбанника, ее кончай легче открыть в экстремальной ситуации, если кому-ведь станет дурно в парилке.
Моечная

Моечная

Моечное отпаивание

Большая ванная комната в бане

Дизайн моечной (массажный секретер)

Душевая с купелью

Душевой поддон в моечной
В этом помещении, слаженно техническим нормам, на каждого человека слыхать приходиться не менее 1,2 квадратных метров площади. Какими судьбами касается оборудования моечной, то оно зависит ото финансовых возможностей хозяев бани и общего размер помещения. Самые бюджетные варианты предусматривают помывку в обычном корыте неужто шайку для обливания. При большом размере моечной и достаточном бюджете в этом помещении впору установить полноценную ванну, душевую кабину и пусть даже небольшой бассейн. Правда в этих случаях придется тащить дополнительные расходы на проведение водопровода.
Синедрион: при достаточных размерах помещения в моечной позволительно установить специальный стол или топчан в целях массажа.
Видео — Устройство русской бани
Парильня
Это главное помещение в бане. И рассчитывать его размеры должен с особой тщательностью.
| Параметры | Описание | Иллюстрации |
|---|---|---|
| Высотка | Она не должна более 2,5 метров. На иной лад пара будет мало и он будет неустойчивым. Производить потолок очень высоким также не рекомендуется, где-то как в этом случае придется тратить неизмеримо больше времени на растопку. |
Высота потолка и полков пользу кого семейной парной |
| Площадь | Ее необходимо предназначать исходя из типа печи и количества персонажей, которые будут пользоваться баней. Если в бане используется штукофен из металла, необходимо сделать парилку каплю большего размера, чем при кирпичной печи. Протяжённость от полки до металлической печи должно быть быть не менее 1,25 метра, а не то есть риск получить ожог, так ни дать ни взять такие типы печей сильно нагревают условия.
На каждого человека, находящегося в парилке слыхать приходиться не менее одного квадратного метра площади. И сие без учета площади печки (в среднем камин также занимает около 1 квадратного метра) и противопожарного расстояния давно стен. Получается, что, к примеру, площадь комфортной парилки сверху трех человек должна составлять не слабее. Ant. более 4,5-5 метров. |
Габариты парилки и расположение в ней людей |
Рекомендация: в целях экономии можно заделать пространства около полками и тем самым уменьшить отапливаемый фонд парной. Это позволит сократить расходы возьми топливо. Ведь в данном случае обогреваемая охват обогреваемой площади уменьшиться, но не в убыток вместительности помещения.
Конструкция и тип печи
Интересах начала стоит определиться с материалом будущей печи. Возлюбленная может быть как кирпичной, так и металлической. Весь круг материал имеет свои преимущества.
Кирпичные печи:

Кирпичные печи
Металлические печи:

Металлическая банная шпурофен

Схема устройства металлической печи для бани

Банные печи
Видео — Что устроена банная печь
Как рассчитать отдача печи
Она рассчитывается исходя из площади свежий и ее конструктивных элементов. Для начала должно измерить общий объем отапливаемого помещения. Подле подсчетах необходимо учитывать теплопотери, поэтому отдельный квадратный метр непокрытых теплоизоляцией поверхностей хорошего понемножку прибавлять к общему объему парной 1,2 кубометра, стеклянная проем – 1,5 кубометра. Если, к примеру, в результате был получен величина в 8 кубометров, для парилки понадобиться печь мощностью 8 кВт.

Производительность электрических печей для бани
Тип печи
Соль определиться с типом каменки. Она может находиться (в присуствии) как открытой, так и закрытой. Печи с открытой каменкой дупелину быстро нагреваются, но остывают также в (два (приема. Камни в них нагреваются до 200-250 градусов.
Печи с закрытой каменкой греются век – в среднем 2-4 часа. Но при этом они растянуто остывают. Температура камней в них достигает 400-500 градусов. Да преимуществом таких печей является то, что-то дым из них не проникает изо парной в другие помещения бани.
Видео — До сей поры о банных печах
Где установить печь
Возлюбленная может устанавливаться как непосредственно в самой парильне (так, в центре или в одном из углов), таким (образом и в соседнем помещении, а именно предбаннике или душевой (в последнем случае каменка располагается в парильне, а дверца топки расположена в дело (другое комнате или даже на улице). В свежий ставятся печи с укороченным топливным каналом, в смежных помещениях – с выносным топливным каналом. В свою очередь необходимо учитывать тип топлива для печи. Неравно для растопки будет использоваться газ, прикладывать печь в парилке нельзя.
В центре парной может въедаться лишь электрическая печь с деревянным защитным бортиком около, так как использование моделей из металла опасно ожогами для находящихся в бане людей.

Электрокаменка с защитным ограждением

Каменка. Топочная дверца в соседнем помещении

Каменка в бане подле двери

Чугунная каменка
Выбор места
Помещение размещения бани зависит от многих факторов.
Постройку не располагать возле водоема. Особенно это актуально чтобы бань, к которым не планируется проводить акведук. При этом они должны быть расположены что-то около, чтобы не быть подтопленными во грядущее паводка, поэтому лучше всего размещать их получи и распишись возвышенности.

Строительство бани

Схема бани получи и распишись участке
Окно лучше располагать c западной стороны, приближенно как ближе к вечеру с этой стороны куда как больше солнца.

Баня на закате
Втык должна располагаться с подветренной стороны к остальным постройкам в (видах того, чтобы в случае пожара огонь малограмотный перекинулся на нее. Правда, для кирпичных строений сие не так актуально, как для деревянных, а по возможности все-таки стоит следовать данному правилу. Расстояние до остальных построек надо быть не менее 5 метров. А вот сие правило должно быть обязательно соблюдено, си как такое расстояние прямо указано в технических и санитарных нормах.
Входная портун должна располагаться с южной стороны, так в духе сугробы зимой с этой стороны гораздо в меньшей степени.

Дом с баней зимой
Совет: если джариб участка невелика, а владелец хочет разместить держи нем несколько построек (к примеру, сарай пользу кого инструментов, летнюю кухню, санузел), лучше соединить их с баней. Иначе можно не войти в установленные техническими нормами расстояния между постройками.
Внутренняя обрабатывание

Внутренняя отделка
Каждое из помещений бани отделывается соответственно-разному.
Парная
Конечно, это помещение никуда не денешься обшивать древесиной. Но подойдет не каждая разряд. Чтобы не обжечься при прикосновении к стенам сиречь полкам, следует отдавать предпочтение породам с минимальной густота древесины, которые медленнее нагреваются: клену, осине, ольхе, липе, северной сосне.
Преторий: из-за большой влажности и перепадов температур дрюк быстро потемнеет. Это вполне нормально, невыгодный нужно задумываться о ремонте, заметив это.

Осиновая кожух
Моечная
В этом помещении по определению кончай максимальная влажность, поэтому лучше всего разбранить пол плиткой. Конечно, можно выбрать и древесину (преимущественное право также необходимо отдавать породам с минимальной плотностью), же какая бы влагостойкая он не была и какими бы составами отнюдь не обрабатывалась постепенное потемнение все равно неотвратимо.

Пол из керамической плитки в бане

Плитку долженствует выбирать матовую, плотную, нескользящую
Совет: керамическая плитка безвыгодный сыреет, но быстро остывает, поэтому прикосновения к ней босыми ногами никак не слишком приятны. Можно установить поверх плитки специальные деревянные поддоны, раз уж на то пошло пользоваться моечной будет гораздо комфортнее.

Безучастный настил
Предбанник
Для отделки этого помещения подойдут любые материалы: вагонка, песчаник, плитка.
Совет: при ограниченном бюджете в помине (заводе) нет нужды выбирать самые качественные материалы. В помещении пора и честь знать низкая влажность, комнатная температура, поэтому пусть даже если отделать стены дешевой сосновой вагонкой уделывать ремонт в помещении придется очень нескоро.

Отшлифовка предбанника деревом
Теплоизоляция
Этот аспект бесконечно важен. Ведь если постройка будет плохо прогреваться, вся титаническая работа по ее возведению короче насмарку. Начинать работы по теплоизоляции бани никуда не денешься с самого первого этапа — возведения фундамента и обустройства пола в бане.

Вульгаризаторский рисунок пола в банном помещении

Народный тактика утепления банного подполья

Бутылки закупорены и уложены рядами перед сварную сетку

Пример утепления ленточного фундамента

Круг бутылок засыпают песком и проливают водой

Произодится альтернация рядов бутылок и просыпки песка
Особое (налегать нужно уделить пароизоляции парилки и моечной. Почти деревянную обшивку закладывается фольгированный утеплитель (во, минвата) либо на слой утеплителя крепится станиоль толщиной до 250 микрон. Утеплять в обязательном порядке нужно ни дать ни взять стены, так и потолок помещения. Для утепления предбанника хоть использовать не фольгу, а более дешевую крафт-бумагу.

Крафт-акция
Чтобы улучшить теплоизоляцию, необходимо располагать окна ни дать ни взять можно ниже и делать высокие пороги в парилке. Вдобавок важна площадь остекления окон. Чем возлюбленная больше, тем больше теплопотери. Поэтому проектом отнюдь не должны быть предусмотрены большие окна. Устроить их размер очень просто. Площадь окна в бане никак не должна превышать 5% от площади пола. И спору нет они все щели в них должны находиться (в присуствии) законопачены, а рамы плотно пригнаны к переплетам.

Пауза банное
Совет. Также уменьшить теплопотери поможет двойное остекление окон.
Вытяжка
В традиционных банях по-белому необходима обустроенная системка вентиляции приточно-вытяжного типа (с принудительной либо естественной циркуляцией). В нее входит отдушина на притока воздуха и вытяжные отверстия. Отверстия угоду кому) притока воздуха лучше всего разместить около дном печки, чтобы воздух быстрее нагревался. Вытяжной водная артерия располагается чуть ниже потолка. Если голландка размещается в парилке, вытяжной канал необходимо распоряжатьс на максимальном расстоянии от нее. В больших парилках с мощными печами дозволено делать два вытяжных канала.
Совет: нуждаться разместить специальные заслонки на выходных отверстиях чтобы того, чтобы контролировать потоки воздуха в парилке.
Видео — Вытяжка в бане своими руками
БЕТОННЫЕ И ЖЕЛЕЗОБЕТОННЫЕ КОНСТРУКЦИИ. СНиП 52-01-2003. Обложка для скачивания
СНиП 52-01-2003
ОТОПЛЕНИЕ, ВЕНТИЛЯЦИЯ И КОНДИЦИОНИРОВАНИЕ. Актуализированная разночтение СНиП 41-01-2003. Файл для скачивания
СНиП 41-01-2003