Мангал своими руками из металла: чертежи, фото, инструменты и этапы работ
Скоро лето, а значит, пора готовиться к отдыху на природе. И трудно представить себе такой отдых без шашлыка, хорошенько прожаренного на мангале. Это приспособление можно приобрести практически в любом хозяйственном магазине, но если не подходит стоимость/качество заводских изделий, то можно изготовить мангал своими руками из металла.

Мангал своими руками из металла

Мангал можно перевозить в удобной сумке
Достоинства железных мангалов
Подобного рода мангалы пользуются большой популярностью, и причина кроется в их бесспорных достоинствах, таких как:
-
низкая стоимость;
легкая чистка, транспортировка, сборка/демонтаж;
равномерная прожарка мяса (железо отлично удерживает тепло);
безопасность;
удобство эксплуатации;
возможность изготовления своими руками.
Обычно самодельные мангалы сваривают, но в отсутствие сварочного оборудования можно прибегнуть и к болтовому креплению.

Мангал своими руками из металла
Цены на различные виды и формы мангалов
Мангалы
Изготовление мангала
В работе потребуются такие инструменты:
-
листовая сталь;
болгарка, диски к ней;
электродрель;
рулетка;
сварочная техника (или болты для стяжки).
Рассмотрим процесс создания традиционного металлического мангала.
Этап 1. План

Схема мангала из металла

Чертежи металлического мангала

Чертежи металлического мангала
Вначале составляется план – небольшая схема будущего изделия. В схеме нужно максимально детально описать шашлычницу, указать размеры каждой детали. Самым удобным является мангал высотой в 85 см и размерами жаровни 40х80 см.
Помимо составления схемы, следует позаботиться о расходных материалах.
Обратите внимание! Нежелательно использовать в работе слишком толстые листы стали, иначе конструкцию будет трудно поднять. Сталь должна быть толщиной от 0,4 см до 1 см.
Этап 2. Расходные материалы
Ниже рассмотрены комплектующие для изготовления шашлычницы высотой в 85 см.
Опоры:
-
4 железные ножки длиной в 65 см из уголка или трубы ø2,5 см;
пара угольников или труб ø2 см для горизонтального соединения ножек (каждое такое соединение будет иметь 76,5 см в длину).
Жаровня:
-
две стенки размерами 77х20 см, сделанные из листа стали;
пара поперечных стенок 39х20 см;
металлическая сетка 39х77 см;
пара поперечных труб для дна конструкции длиной в 39 см;
две железных ручки для удобной транспортировки;
несколько шамотных кирпичей.
Обратите внимание! Вместо сетки с поперечинами можно использовать один цельный лист 39х77 см.
Также потребуется крышка соответствующего размера с продольными краями, загнутыми внутрь.

Заготовки для мангала

Заготовки для мангала

Заготовки для мангала

Заготовки для мангала

Заготовки для мангала
Этап 3. Сварочные работы
Дальше все приготовленные элементы необходимо сварить или соединить болтами.
Шаг 1. Вначале из стенок и дна сваривается корпус (использование болтов будет рассмотрено ниже).
Шаг 2. К корпусу привариваются ножки.
Шаг 3. Ножки укрепляются продольной связью, желательно на высоте 15 см – так между ними останется запас для хранения дров.
Шаг 4. Если для дна жаровни использовалась металлическая сетка, то укладывается шамотный кирпич. В продольных стенках проделываются небольшие отверстия (по 5 штук на каждой стороне, шаг – 10 см) для подачи кислорода (так дрова будут быстрее разжигаться).
Шаг 5. На поперечных стенках фиксируются ручки, изготовленные из стальной проволоки ø1 см.

Сборка мангала

Сборка мангала

Сборка мангала

Мангал из металла

Мангал металлический

Мангал металлический
Цены на популярные модели сварочных аппаратов
Сварочные аппараты
Этап 4. Покраска мангала
Вначале разберемся, нужно ли вообще красить шашлычницу. С одной стороны, краску, равно как и другие химические средства, нежелательно наносить на мангал, т. к. приготавливаемое мясо вберет вредные вещества. С другой стороны, нынешние средства, используемые для покраски шашлычниц, абсолютно безопасны.
Обратите внимание! Проблемой может стать лишь высокая температура горения, способная привести к расслаиванию или даже сгоранию покрасочного слоя.
Среди всех огнеупорных покрытий для мангала рекомендуется выбрать следующие:
-
кремнийорганическую эмаль, которая выдерживает температуру до 600ᵒС;
термические порошкообразные краски – эффективные, но сложные в нанесении (нуждаются в высокотемпературном обжиге);
технологию оксидирования.

Жаростойкая краска
Последний вариант подходит больше всего. Вначале корпус обрабатывается 5-процентной серной кислотой, затем кипятится в растворе хозяйственного мыла и 1,5 часа варится в настое едкого натрия. В результате на конструкции образуется антипригарный слой черного цвета, защищающий ее от ржавчины.

Стальной мангал с кирпичной футеровкой

Стальной мангал с кирпичной футеровкой
Видео – Мангал своими руками
ТОП-15 лучших сварочных инверторов
| Фото | Название | Рейтинг | ||||
|---|---|---|---|---|---|---|
| ТОП-4 лучших инвертора для ручной сварки ММА | ||||||
| #1 |
|
Eurolux IWM190 | ⭐ 99 / 100 | Узнать подробнее | ||
| #2 |
|
Fubag IQ200 | ⭐ 98 / 100 | Узнать подробнее | ||
| #3 |
|
Ресанта САИ-220 | ⭐ 97 / 100 | Узнать подробнее | ||
| #4 |
|
Искра MIG-305SP | ⭐ 96 / 100 | Узнать подробнее | ||
| ТОП-4 лучших инвертора для полуавтоматической сварки MIG и MAG | ||||||
| #1 |
|
Blue Weld Starmig 210 DualSynergic | ⭐ 99 / 100 | Узнать подробнее | ||
| #2 |
|
AuroraPRO Overman 200 | ⭐ 98 / 100 | Узнать подробнее | ||
| #3 |
Сейчас читают:
|
Сварог ProMIG 200 Synergy | ⭐ 97 / 100 | Узнать подробнее | ||
| #4 |
|
Fubag IRMIG 200 Syn | ⭐ 96 / 100 | Узнать подробнее | ||
| ТОП-4 лучших инвертора для аргонодуговой сварки TIG | ||||||
| #1 |
|
AuroraPRO Inter TIG 202 | ⭐ 99 / 100 | Узнать подробнее | ||
| #2 |
|
Сварог Real TIG 200 | ⭐ 98 / 100 | Узнать подробнее | ||
| #3 |
|
Ресанта САИ-250АД AC/DC | ⭐ 97 / 100 | Узнать подробнее | ||
| #4 |
|
Wert MMA 200 | ⭐ 96 / 100 | Узнать подробнее | ||
| ТОП-3 лучших универсальных сварочных инвертора | ||||||
| #1 |
|
Кедр MIG 175GD | ⭐ 98 / 100 | Узнать подробнее | ||
| #2 |
|
Quattro Elementi MultiPro 2100 | ⭐ 98 / 100 | Узнать подробнее | ||
| #3 |
|
Aurora Speedway 175 | ⭐ 97 / 100 | Узнать подробнее | ||
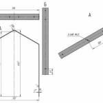
Мангал стационарный с навесом

Мангал стационарный с навесом, чертежи

Мангал стационарный с навесом, чертежи
1-Топка. 2-Стол. 3-Стойка. 4-Навес. 7-Шампур

Шампур. Сталь листовая

Топка мангала

Боковина

Стяжка

Решетка

Стол мангала

Стяжка (уголок на 40)

Стяжка короткая (уголок на 40)

Стяжка передняя (уголок на 40)

Втулка

Заглушка.Сосна

Стяжка. Труба d22

Каркас навеса. Сборочный чертеж

Козырек.Поликарбонат

Навес. Сборочный чртеж

Колено. Труба d22

Втулка

Стойка. Сборочный чертеж

Опора зонта. Сталь листовая

Плата. Сталь листовая

Зонт. Сборочный чертеж

Пятка. Сталь листовая
После изготовления стационарного мангала, желательно соорудить для него навес. Существует масса материалов, которые можно использовать для этого при минимальных затратах времени и денег. Разве что железную конструкции невозможно выполнить без сварки (при желании ее можно заменить стяжкой болтами).
Опоры навесов обычно приваривают к ножкам мангала, но иногда встречаются весьма габаритные конструкции (4х4 м), для которых бетонируется четыре металлических столба.
Сверху на столбы по периметру навеса укладываются уголки 5х5 см, а поверх них – металлопрофиль или любой другой кровельный материал. При желании навес украшается ковкой.
Деревянный навес изготовить проще, но поверхность следует обработать антисептиком и антипиреном.
Создание мангала из железной бочки
При желании можно сконструировать и более габаритный вариант – к примеру, стационарную конструкцию из бочки. Сама бочка может быть любой, главное, чтобы ее размеров хватило для приготовления шашлыка.

Мангал

Мангал
Обратите внимание! Подбирая бочку, особое внимание стоит уделить ее «прошлому». Если раньше в ней хранились химические вещества или ГСМ, то ее запрещено использовать для создания мангала.
Кроме самой бочки следует приготовить:
-
стальной уголок с полкой высотой минимум 4,5 см;
четыре резиновых колеса (желательно с металлической основой);
два комплекта дверных петель;
дверную ручку (железную);
металлическую сетку;
болгарку, диски к ней;
сварку;
электролобзик.
Инструкция по изготовлению
Шаг 1. Нарезаются отрезки уголка необходимой длины. Высота конструкции должна составлять примерно 1 м, а ширина соответствовать длине бочки.
Шаг 2. Боковые элементы будут состоять из двух горизонтальных и двух вертикальных стоек каждый. Первые будут установлены снизу, примерно в 25 см от нижнего края вертикальных стоек, и сверху, на уровне радиуса бочки. Стойки выкладываются на ровной поверхности и свариваются так, как показано на изображении – под углом в 90ᵒ.

Резка баллона
Шаг 3. Аналогичным образом сваривается вторая боковая часть конструкции, после чего оба элемента соединяются посредством двух уголков, установленных на уровне нижних горизонтальных стоек.
Обратите внимание! Соединять нужно с предельной осторожностью, чтобы избежать перекосов.
Шаг 4. К боковине крепятся колеса.
Шаг 5. Далее на готовую опору устанавливается бочка. Это нужно сделать таким образом, чтобы сливное отверстие располагалось сзади и сверху под углом в 30ᵒ, по правой стороне (в отношении к фронтальной части). Такое отверстие при эксплуатации послужит вытяжкой.
Шаг 6. При помощи мела отмечается ¼ часть бочки – крышка шашлычницы. Размеченная часть вырезается электролобзиком, края тщательно зачищаются болгаркой со шлифовальным диском.
Шаг 7. К четверти бочки крепятся дверные петли, после чего они соединяются с основанием – крышка готова. Для удобства эксплуатации к крышке крепится дверная ручка.
Шаг 8. В вытяжку вставляется труба соответствующего диаметра.
Шаг 9. Остается лишь позаботиться о внутреннем обустройстве. На внутренней поверхности корпуса привариваются специальные держатели (железные пластины размерами 3х6 см, хотя можно взять и тонкие уголки). Эти держатели устанавливаются посередине каждой из сторон, по две штуки.

Мангал из бочки. Элементы ковки
Обратите внимание! Для удобной транспортировки к раме мангала можно прикрепить рукоятку. После этого конструкция окрашивается так же, как было описано в предыдущем пункте статьи.
Видео – Мангал из бочки
Интересные идеи для мангалов
Узнайте, как сделать мангал своими руками из металла, а также рассмотрите разборные и стационарные конструкции, из нашей новой статьи.
Если цель заключается в создании не только функциональной, но и привлекательной с дизайнерской точки зрения шашлычницы, то советуем обратить внимание на художественную ковку. Конечно, сделать это самостоятельно без специального оборудования и соответствующих навыков невозможно.
Или еще вариант: если есть возможность достать переднюю часть старого автомобиля, то ее также можно использовать при изготовлении мангала. Жаровня в такой конструкции помещена в капот. Более того, мангал уже с колесами, поэтому его можно взять с собой на природу (в качестве прицепа, разумеется).

Мангал из авто
Мини-мангал для городских квартир
Вряд ли в городской квартире найдется место для полноценного мангала, но это не значит, что вы должны отказывать себе в хорошем пикнике. Для подобных случаев существует миниатюрный балконный мангал, крепящийся на перила наподобие цветочных горшков. Длина таких конструкций чуть больше полуметра, поэтому они подойдут даже для самых малогабаритных террас и балконов.
При желании балконный мангал можно прикрутить к стене или установить в любом другом удобном месте. Словом, теперь можно насладиться кусом настоящего шашлыка даже не выходя из квартиры.

Мини-мангал для городских квартир

Мини-мангал для городских квартир

Мини-мангал для городских квартир
Советы по эксплуатации мангалов
Чтобы шашлычница прослужила максимально долго, необходимо соблюдать все правила пожарной безопасности. Расстояние от огня до деревянных элементов конструкции (если такие имеются – к примеру, насадка на транспортировочную ручку) должно составлять минимум 20 см. Более того, все эти элементы обязательно следует обработать антисептиком и антипиреном.

Как пользоваться мангалом
Ранее, когда ассортимент специй был весьма скудным, для придачи блюдам аромата использовалось горящее дерево. Ниже приведены виды деревьев и мясо, для которого их лучше использовать:
-
дуб – морепродукты, птица;
яблоня – баранина, говядина, свинина;
лоза винограда – улитки, морепродукты;
ольха – семга, индейка;
клен – морепродукты, птица, свинина;
береза – говядина, курица;
вишня – птица, баранина.
Обратите внимание! Не рекомендуется использовать хвойные деревья (они выделяют смолу при горении), ДСП или фанеру.
Существует другой вариант – приобрести готовые угольные брикеты в магазине. Брикеты дают перманентный жар, но в то же время отсутствует какой-либо аромат. Есть еще рассыпной уголь, но он горит неравномерно по причине различной величины кусков.
Перед жаркой решетку следует смазать жиром, чтобы продукты не приставали к ней. И последнее: место для установки мангала следует заранее очистить от сухой травы, веток, мусора, желательно также, чтобы рядом всегда находилось ведро с песком.
Видео – Как быстро разжечь мангал
Eurolux IWM190
Один из самых недорогих инверторов обеспечивает комфортное выполнение сварочных работ благодаря своему небольшому весу (3,7 кг), широкому диапазону токов от 10 до 190 А и функции Hot Start. Устройство может работать без снижения эффективности с напряжением на входе от 140 до 260 В. Допустимый диаметр электродов 1,6-5 мм. На лицевой панели аппарата предусмотрены регулятор тока и индикаторы текущего состояния инвертора.

Eurolux IWM190
Плюсы
-
защита от перегрузок;
широкий диапазон сварочных токов;
высокий коэффициент ПВ 70% на максимуме;
форсаж дуги.
Минусы
-
короткие комплектные кабели (2 и 1,5 м);
требователен к качеству электродов.
Fubag IQ200
Новинка в модельном ряду сварочных инверторов немецкого производителя подойдет для выполнения большинства бытовых сварочных работ. У аппарата широкий диапазон регулировки токов от 20 до 200 А, есть встроенная система охлаждения и защита от перегрузок. Имеет полный набор полезных функций: форсаж, антизалипание, горячий старт. Благодаря им можно с комфортом работать любыми электродами 1,6-5 мм.

Fubag IQ200
Плюсы
-
хороший набор функций;
компактный и легкий (3 кг);
стабильная работа при низком входном напряжении от 150 В;
высокий КПД за счет применения IGBT-транзисторов.
Минусы
-
сравнительно низкий коэффициент ПВ 40%;
к регулятору тока в рабочих перчатках не подлезть.
Ресанта САИ-220
ММА-инверторы «Ресанта» можно назвать лучшими по соотношению цены, функциональности и качества. Горячий старт, антизалипание электрода и увеличенное пороговое значение сварочного тока в 220 А позволяют делать качественные швы и резку металла. При этом остается возможность длительной беспрерывной работы, а стабильность дуги сохраняется даже при низком входном напряжении. Ресанта САИ-220 подойдет и начинающим сварщикам, и опытным мастерам – достаточно выбрать подходящую модификацию.

Ресанта САИ-220
Плюсы
-
крепкий корпус с защитой ip21;
широкий диапазон настроек токов (от 10 А);
стабильная работа при напряжении 140 В;
высокий ПВ – 70%;
кейс в комплекте.
Минусы
-
отсутствие функции форсаж;
плохо переносит переохлаждение.
Искра MIG-305SP
«Искра» – простой, но надежный инвертор, который подойдет для нерегулярного использования на даче или в гараже. Причем использовать его можно и как полуавтомат MIG, и как обычный ММА-прибор. Особенностями этого агрегата являются сравнительно невысокая мощность (6,4 кВт), а также раздельная регулировка напряжения дуги и сварочного тока в пределах 20-305 А, что весьма нетипично для моделей бюджетной ценовой категории. А главное – перед нами полноценный полуавтомат-гибрид с возможностью ручной сварки.

Искра MIG-305SP
Плюсы
-
возможность работы без газовой среды в режиме ММА;
богатая комплектация вплоть до щитка и наколенников;
работа в непрерывном режиме – 60%;
невысокая для полуавтомата стоимость.
Минусы
-
отсутствие быстроразъемного соединения горелки.
Blue Weld Starmig 210 DualSynergic
Blue Weld Starmig – продвинутый полуавтомат, с которым «подружатся» даже новички. Весьма функциональная модель относится к премиальному сегменту. Главная особенность этого инвертора – автоматические настройки параметров работы в режимах MIG/MAG, для которых предусмотрено 17 готовых программ.

Blue Weld Starmig 210 DualSynergic
Плюсы
-
простота в эксплуатации;
микропроцессорное и ручное управление;
возможность работы в режимах MIG/MAG;
широкий диапазон рабочих токов;
компактные размеры.
Минусы
-
низкий коэффициент ПВ – 20%;
цена около 60 тысяч рублей.
AuroraPRO Overman 200
AuroraPRO – отличный вариант для мастерских и ремсервисов в пригородах или на периферии. Качество сварки у аппарата на высоте, а работать он может даже при проседающем напряжении в сети. В отличие от многих унифицированных моделей, инверторный полуавтомат Overman «заточен» на работу исключительно с проволокой. Порог входного напряжения составил всего 140 В, а показатели холостого хода были снижены до 42 В. Сила тока здесь регулируется в пределах 40-200 А, что позволяет выполнять большинство стандартных работ на бытовом уровне.

AuroraPRO Overman 200
Плюсы
-
защищенный корпус (ip 21);
работает со всеми видами сварочной проволоки;
раздельная регулировка тока и индуктивности;
съемный рукав горелки с евроразъемом;
стабильная работа при низком напряжении.
Минусы
-
нет плавной регулировки скорости подачи проволоки;
ПВ всего 40%;
громоздкая конструкция и вес больше 15 кг.
Сварог ProMIG 200 Synergy
Сварог ProMIG – достойный гибрид, который дает одинаково хороший результат при любом виде сварки. Справится с ним и неопытный сварщик, но высокая стоимость аппарата переводит его в категорию профессионального оборудования. Один из самых популярных инверторов нового поколения предусматривает 4 режима работы MAG/MIG с возможностью аргонодуговой сварки.

Сварог ProMIG 200 Synergy
Плюсы
-
широкий диапазон токов 10-200 А;
автоматические и ручные настройки параметров тока и напряжения;
функция VRD;
оптимальная периодичность выключения (ПВ) – 60%;
5 лет гарантии от производителя.
Минусы
-
стоимость около 50 тысяч.
Fubag IRMIG 200 Syn
Fubag IRMIG – серьезный профессиональный аппарат, который подойдет для любого типа сварки, в том числе и ручной технологии. Перед нами многофункциональный полуавтомат, предназначенный для работы во всех сварочных режимах. Диапазон сварочного тока зависит от выбранной технологии и варьируется в пределах 15-200 А. Периодичность выключения составляет 60%, но это при температуре окружающей среды +40 °С. А при стандартных +20 °С инвертор сможет работать практически без остановки.

Fubag IRMIG 200 Syn
Плюсы
-
универсальность;
расширенный диапазон настройки токов;
возможность работы в нескольких сварочных режимах;
наличие дисплеев для отображения выбранных характеристик;
длинный рукав горелки 3 м.
Минусы
-
короткие кабели держателя электродов и заземления;
немаленький вес (12 кг).
AuroraPRO Inter TIG 202
Inter TIG – модель начального уровня для новичков в аргонодуговой сварке. Проста до безобразия, но в работе надежна и удобна. Этот недорогой инвертор отличается высокой надежностью и стабильной работой благодаря применению технологии MOSFET. А еще он получил систему бесконтактного розжига дуги и способен работать в сложных условиях при температуре -20..+50 °С.

AuroraPRO Inter TIG 202
Плюсы
-
двухрежимная работа TIG/MMA;
недорогие транзисторы MOSFET;
бесконтактный поджиг;
пыле-влагозащищенный корпус;
хорошая базовая комплектация.
Минусы
-
автоматические настройки не всегда корректны;
низкий ПВ на максимальном токе – 35%.
Сварог Real TIG 200
Сварог Real – лучшая модель, для тех, кто ищет бюджетный инвертор аргонодуговой сварки без лишних наворотов. Аналогичный по своему функционалу аппарат «Сварог» также поддерживает две технологии сварки: ручную и TIG. В первом случае силу тока можно изменять в пределах 10-200 А, во втором «потолок» уже пониже и составляет всего 160 А. Зато модель устойчиво работает при напряжении на входе от 160 В, причем не требует длительных перерывов даже на максимальных токах, если температура окружающего воздуха +18..+25°С.

Сварог Real TIG 200
Плюсы
-
простота использования;
время продувки настраивается в пределах 1-10 сек;
высокочастотный розжиг дуги;
показатель КПД на уровне 85%;
относительно небольшой вес.
Минусы
-
мало настроек, да и дополнительных функций почти никаких.
Ресанта САИ-250АД AC/DC
Ресанта 250АД достойна внимания профессиональных сварщиков, которые разбираются во всех тонкостях настройки. Этот инвертор поможет получить безупречный по качеству шов на любом металле. Не убиваемая TIG-установка с двойным инвертором позволяет работать на постоянном и переменном токе, что значительно расширяет возможности сваривания различных металлов и их сплавов. Аппарат обеспечивает стабильную дугу в диапазоне токов от 15 до 250 А.

Ресанта САИ-250АД AC/DC
Плюсы
-
двух- и четырехтактный режимы;
возможность работы постоянным и переменным током;
автоматическое понижение ампер;
богатая комплектация;
хороший набор функций.
Минусы
-
короткие кабели;
нет ручки для переноски.
Wert MMA 200
Wert – легкий и удобный «домашний» инвертор, с которым удобно работать на высоте, где аппарат приходится вешать на шею. Профессиональный сварочник и в ручном, и в TIG-режиме может работать с максимальным током до 200 А. Особой прожорливостью он не отличается, потребляя не больше 4,2 кВт. Просадки и скачки напряжения ему тоже не страшны: аппарат не реагирует на перепады в диапазоне 136-264 В.

Wert MMA 200
Плюсы
-
индикация и защита от перегрева;
защита от пыли и брызг (ip 21);
функция Hot Start;
минимальный вес.
Минусы
-
комплектные кабели коротковаты;
возможно залипание на малых токах.
Кедр MIG 175GD
«Кедр» – отличный и не капризный инвертор для частной мастерской, дачи или загородного дома. Даже в руках неопытного пользователя он даст шов хорошего качества и не потребует сложной настройки. Управляется он микропроцессором, Силовой блок IGBT регулирует все параметры в автоматическом режиме, но «Кедр» допускает и ручную настройку вольтамперных характеристик. В режиме ММА пиковый ток составляет 175 А, индекс ПВ достигает 60%. Также при работе владельцу доступно два режима 2Т/4Т, а безопасность эксплуатации прибора обеспечивает VRD.

Кедр MIG 175GD
Плюсы
-
четырехтактный режим, позволяющий делать ровные швы;
удобное синергетическое управление;
есть защита от перегрузки;
неприхотлив и имеет защиту от дождя и пыли;
длительная непрерывная работа на слабых токах (до 100 А).
Минусы
-
нет бесконтактного розжига дуги;
при срабатывании защиты потребуется перезапуск.
Quattro Elementi MultiPro 2100
Аппарат известного итальянского производителя в режиме ручной сварки дает максимальный ток 160 А и позволяет использовать электроды 1,6-4 мм. При переключении на полуавтомат сварочный ток можно поднять уже до 190 ампер. А IGBT транзисторы обеспечат хорошую мощность и безотказную работу устройства. Благодаря своей универсальности MultiPro упрощает многие процессы в частной мастерской или на небольшом производстве. Но к нему нужно будет отдельно приобрести горелку для аргонодуговой сварки – в комплекте ее почему-то нет.

Quattro Elementi MultiPro 2100
Плюсы
-
аргонодуговая сварка в режимах 2Т/4Т;
хороший функционал;
сварка короткой и струйной дугой;
компактные размеры.
Минусы
-
низкий коэффициент ПВ – 35%;
пластиковый подающий механизм.
Aurora Speedway 175
Speedway 175 не просто позволяет применять различные технологии сварки, но и полностью подготовлен ко всем видам работ. В комплекте с аппаратом уже идут: горелка с наконечниками под проволоку разного размера, сопла и расходники для аргонодуговой сварки, а также много других полезных аксессуаров. Speedway способен работать в среде углекислоты, инертного газа, оснащен разъемом TIG и функцией VRD.

Aurora Speedway 175
Плюсы
-
евроразъем горелки;
повышенный уровень защиты корпуса ip 23;
хорошо переносит падение напряжения в сети;
микропроцессорное управление;
возможность работы в режиме ручных настроек.
Минусы
-
автоматические настройки не всегда корректны;
низкий ПВ на максимальном токе – 35%.














